Entrepôt - Dépôt en Location

€ 2 775/mois
370 m²

Remarque

Annonce mise à jour le 22/01/2026
Description

référence: E4000

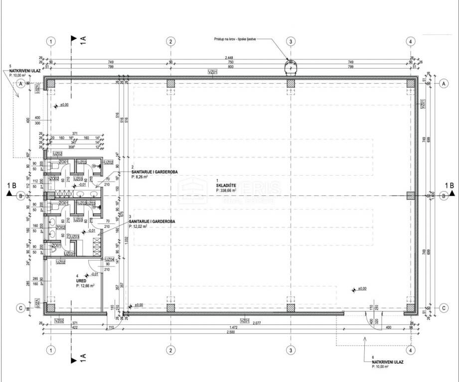
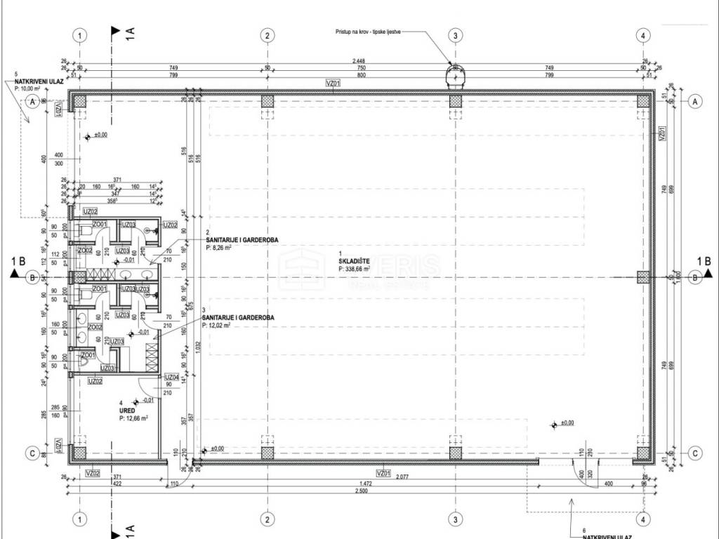
Grobnik, Čavle, hala 370 m2, zakup

U ponudi je funkcionalan prostor/ hala ukupne površine 370 m2.

Skladišni prostor ima površinu od 338 m2, te je organiziran tako da zadovoljava potrebe različitih poslovnih djelatnosti. Skladišni dio ima visinu stropa 6 m, što omogućuje optimalno korištenje prostora i skladištenje većih količina robe.

Unutar prostora nalaze se dva sanitarna čvora, dvije garderobe za zaposlenike te ured, što osigurava ugodne i praktične uvjete za svakodnevno poslovanje. Prostor je pogodan za skladišne, logističke, proizvodne ili servisne djelatnosti.

Pristup kamionima, šleperima je omogućen.
1 utovarna i istovarna rampa i mostna dizalica.

Više parkirnih mjesta.

Trenutno je hala u fazi projektiranja.

Za sve dodatne informacije slobodno nas kontaktirajte.

Poštovani klijenti, agencijska provizija naplaćuje se u skladu s Općim uvjetima poslovanja
EVERIS REAL ESTATE, koje možete preuzeti na našoj web stranici https://nekretnine.everis.hr/o-nama/opci-uvjeti-poslovanja

ID CODE: E4000

Marin Modić
Agent s licencom
Mob: +385 (91) 5954 045
Tel: +385 (0)91 5954 045
E-mail: m.modic@everis.hr
https://nekretnine.everis.hr/
Caractéristiques
Transaction
Location
Typologie
Entrepôt - Dépôt
Superficie
370 m²
Informations sur les prix
Prix
€ 2 775/mois
Prix au m²
8 €/m²
Détails des coûts
Caution
Non indiquée
Plan
Options additionnelles

Contacter l'annonceur

Ou