Maison jumelée / mitoyenne Rovinj, Rovinj

€ 165 000
1
30 m²
Non

Remarque

Annonce mise à jour le 22/01/2026
Description

This description has been translated automatically and may not be accurate

référence: 1029-542

Istria, Rovinj, center,

This charming house, located in the heart of Rovinj, Istria, represents a unique opportunity to create your own little paradise on the Adriatic coast. The house stands out for its distinctive architecture and is located among narrow stone streets, creating an authentic experience of old town charm. The sea is only a few steps away.

The property has a land area of 36m2 with its own access road, providing a sense of privacy in the very center of the city. Although it currently requires a complete renovation, all the necessary conservation conditions have already been ensured for the project that foresees the transformation of this house into a unique apartment or a small family house.
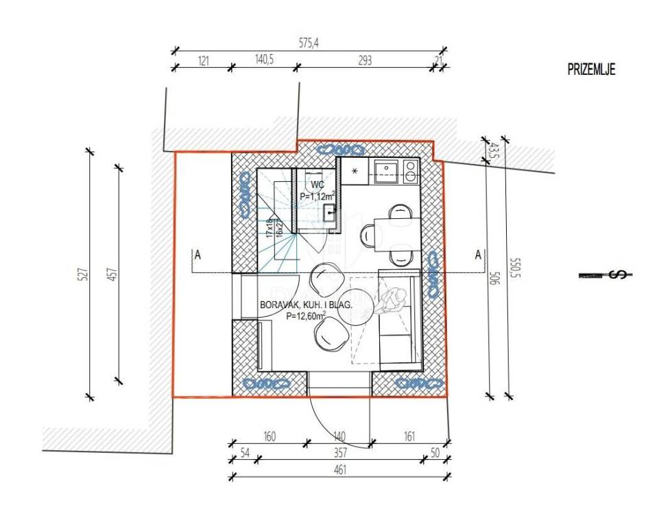
The ground floor is reserved for the living room with kitchen and dining room, providing a comfortable space for socializing. The sanitary unit further enriches the functionality of this part of the house. Upstairs, in the loft, a bedroom and a bathroom are planned.

Considering the unique location that allows living in the very center of the city, this house offers a unique opportunity to create a small oasis that will simultaneously preserve the authenticity of the space and meet modern living needs. This is for all those who are looking for a combination of tradition, history and the comfort of life on the beautiful Adriatic coast.

ID CODE: 1029-542
Caractéristiques
Typologie
Maison jumelée / mitoyenne
Transaction
Vente
Étages du bâtiment
1
Ascenseur
Non
Superficie
30 m²
Chambres/pièces
1
Chambres
0
Balcon
Non
Terrasse
Non
Informations sur les prix
Prix
€ 165 000
Prix au m²
5 500 €/m²
Efficacité énergétique
  • Année de construction

    1900
  • Certification énergétique

    Non classifiable
Plan
Découvrez chaque recoin de la propriété
+2
Options additionnelles

Contacter l'annonceur

Ou