Terrain constructible en Vente

€ 68 000
421 m²

Remarque

Annonce mise à jour le 22/01/2026
Description

référence: 300561010-354

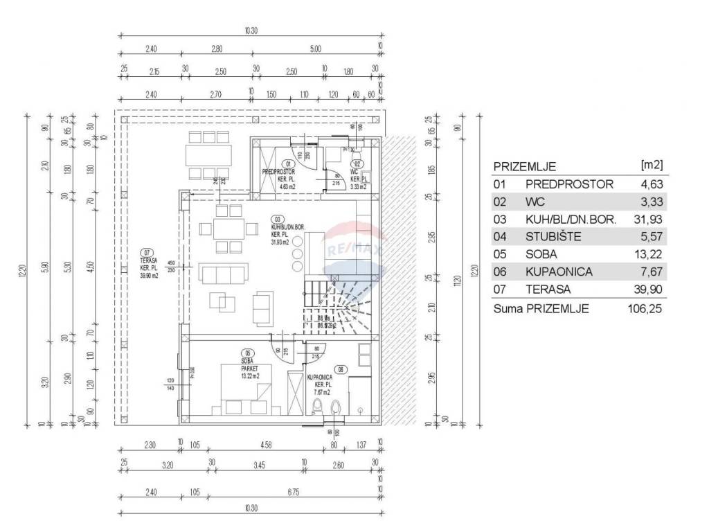
Prodajemo građevinsko zemljište od 421m2, sa građevinskom dozvolom za građenje građevine stambene namjene (P+1) sa bazenom; projekt kuće je predviđen za kategorizaciju kuće za odmor sa 5 zvjezdica.

Po projektu, u prizemlju kuće će se nalaziti ulazni prostor, wc, kuhinja s bagovaonicom, soba s pripadajućom
kupaonicom te dnevni boravak sa izlazom na južnu natkrivenu terasu.

Unutarnje stubište povezuje prizemlje sa 1.katom kuće, gdje će se nalaziti dvije spavaće sobe i dvije kupaonice sa wc-om sa izlazom na nenatkrivenu terasu, sa koje se pruža prekrasan pogled na prirodu i more.

U međuprostoru regulacijske i građevinske linije izgraditi će se pristupni most za potrebe parkiranja vozila jer se
parcela nalazi ispod razine pristupne ceste, te se konstrukcije ne obračunavaju u izgrađenost
parcele.

Pješački i kolni pristup parceli omogućen je sa istočne strane preko postojećeg puta.

Krovište je dvostrešno nagiba 23°

Uz stambenu građevinu planira se izgradanja bazena dimenzija 3,0 * 8,00 m.

Opskrba vodom će se riješiti izgradnjom cisterne za vodu, a odvodnja otpadnih voda priključkom na nepropusnu
septičku jamu.
S obzirom na jednu jedinicu za stanovanje (stambeni prostor ), predviđa se 1 mjerno
mjesto (brojilo).

ID CODE: 300561010-354

Anita Đaković
Prodajni predstavnik
Mob: +385 91 641 0027
Tel: + 385 51 627 667
E-mail: a.dakovic@remax-crikvenica.hr
remax-centarnekretnina.com
Caractéristiques
Transaction
Vente
Typologie
Terrain constructible
Superficie
421 m²
Informations sur les prix
Prix
€ 68 000
Prix au m²
162 €/m²
Découvrez chaque recoin de la propriété
+15
Options additionnelles

Contacter l'annonceur

Ou