Appartement 3 chambres Vodice, Vodice

€ 320 000
3
81 m²
1
Oui
Terrasse

Remarque

Annonce mise à jour le 07/04/2026
Description

This description has been translated automatically and may not be accurate

référence: MO-JA-2

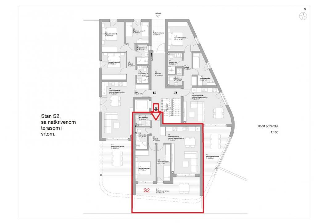
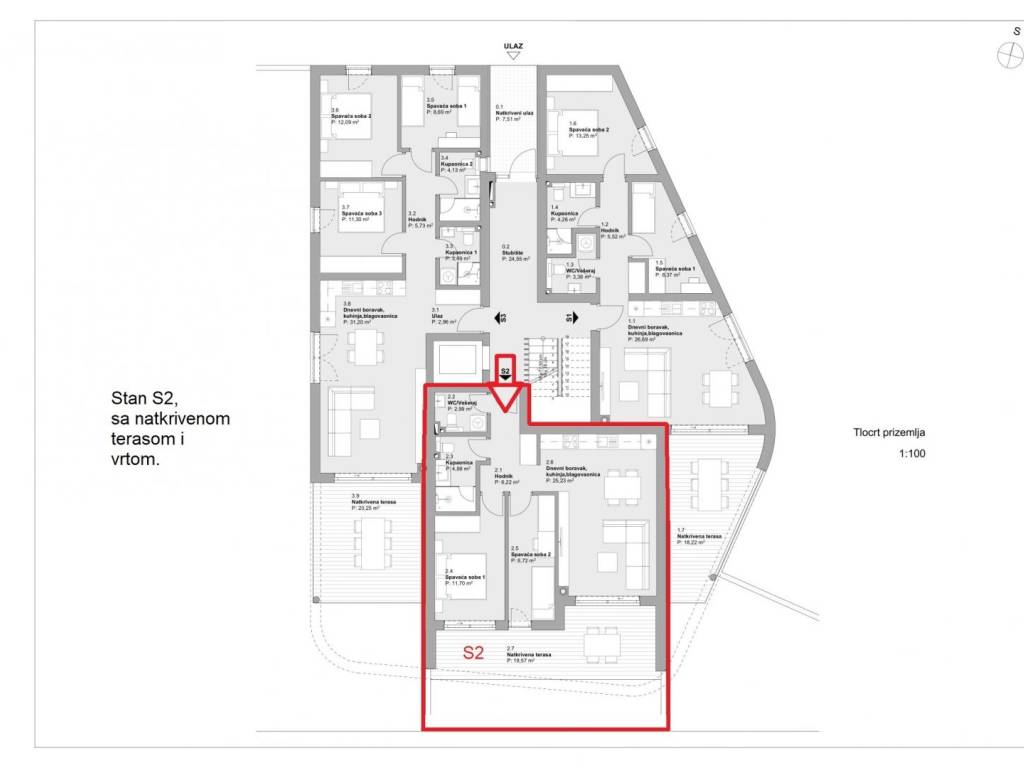
For sale is an apartment marked S2, located on the ground floor of a luxurious new building.
It consists of 2 bedrooms, a kitchen-dining room-living room, a bathroom, a toilet/laundry room, a hallway, a covered terrace and a private garden. The apartment has 1 parking space.

This modern building with a total of 9 apartments of various sizes, with two or three bedrooms, is designed with a special emphasis on natural lighting and open spaces. Glass surfaces and covered balconies create a connection between the interior and exterior spaces, allowing daylight to enrich the living space.

Respecting the existing street layout and the height of the surrounding buildings, the new residential building stands out with its innovative design, high-quality materials and functional spaces that provide residents with a high standard of living.

The apartments are built and equipped according to high economic and construction standards. Sound, heat and water insulation, PVC windows with electric shutters and insect protection, elevator, burglar and fireproof entrance doors, decorated and ventilated sanitary area, inverter air conditioners in all rooms, underfloor heating in bathrooms and kitchen-dining-living room, SAT TV installations, top-quality ceramic tiles, Hans Grohe faucets, Grohe built-in cisterns.

All of the above brings a combination of luxury, comfort and environmental sustainability, making it one of the most exciting architectural projects in Vodice.

The parking problem is solved by parking spaces located in the building's courtyard.

An exceptional and accessible location just 90 m from the sea and beach and only 500 m from the city center.

NOTE: The building is subject to VAT. The buyer does not pay the 3% real estate transfer tax to the Republic of Croatia.

ID CODE: MO-JA-2

Bilan nekretnine
Mob: +385 (0)98 266 440
Tel: +385 (0)98 266 440
E-mail: bilan.agencija@gmail.com
www.bilan-agencija.hr
Caractéristiques
Typologie
Appartement
Transaction
Vente
Ascenseur
Oui
Superficie
81 m²
Chambres/pièces
3
Chambres
2
Bains/douches
1
Balcon
Non
Terrasse
Oui
Box, places stationnement
1 place(s) de parking
Chauffage
Individuel, avec air
Climatisation
Autonome, froid/chaud
Informations sur les prix
Prix
€ 320 000
Prix au m²
3 951 €/m²
Efficacité énergétique
  • Année de construction

    2025
  • Chauffage

    Individuel, avec air
  • Climatisation

    Autonome, froid/chaud
  • Certification énergétique

    Non classifiable
Plan
Découvrez chaque recoin de la propriété
+5
Options additionnelles

Contacter l'annonceur

Ou