1/8


Maison individuelle Valtura, Ližnjan, Ližnjan
€ 460 000
Annonce mise à jour le 22/01/2026
Description
référence: MK-330
ID CODE: MK-330
Mila Marković
Agent s licencom
Mob: 00385976199610
Tel: 097 619 9610
E-mail: milamarkovic5@gmail.com
www.akropola-immobilien.com
Caractéristiques
- Typologie
- Maison individuelle
- Transaction
- Vente
- Étages du bâtiment
- 2
- Ascenseur
- Non
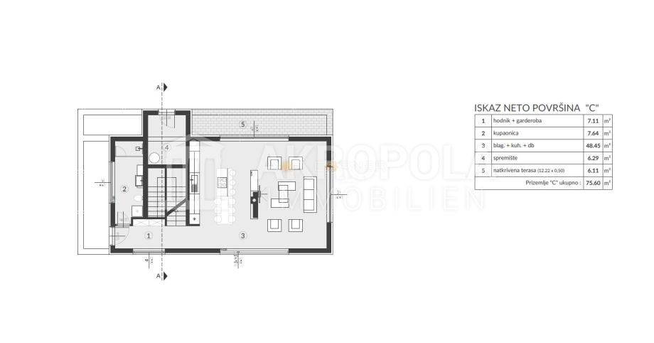
- Superficie
- 166 m²
- Chambres/pièces
- 4
- Chambres
- 3
- Bains/douches
- 3
- Balcon
- Non
- Terrasse
- Non
- Box, places stationnement
- 3 place(s) de parking
- Climatisation
- Autonome, froid/chaud
Informations sur les prix
- Prix
- € 460 000
- Prix au m²
- 2 771 €/m²
Découvrez chaque recoin de la propriété
Options additionnelles