Appartement 4 chambres Poreč, Luka, Poreč

€ 475 000
4
126 m²
Non
Terrasse

Remarque

Annonce mise à jour le 24/01/2026
Description

This description has been translated automatically and may not be accurate

référence: ALG-2847

Istria, Poreč – Modern apartment with rooftop terrace and sea view

For sale is a stunning first-floor apartment located in a quiet and charming area, surrounded by newly built properties. Situated just 1,200 meters from the sea and 3 kilometers from the center of Poreč, this residence offers a perfect blend of tranquility and accessibility. The small residential building consists of only four apartments, each with its own entrance and parking space, ensuring complete privacy.

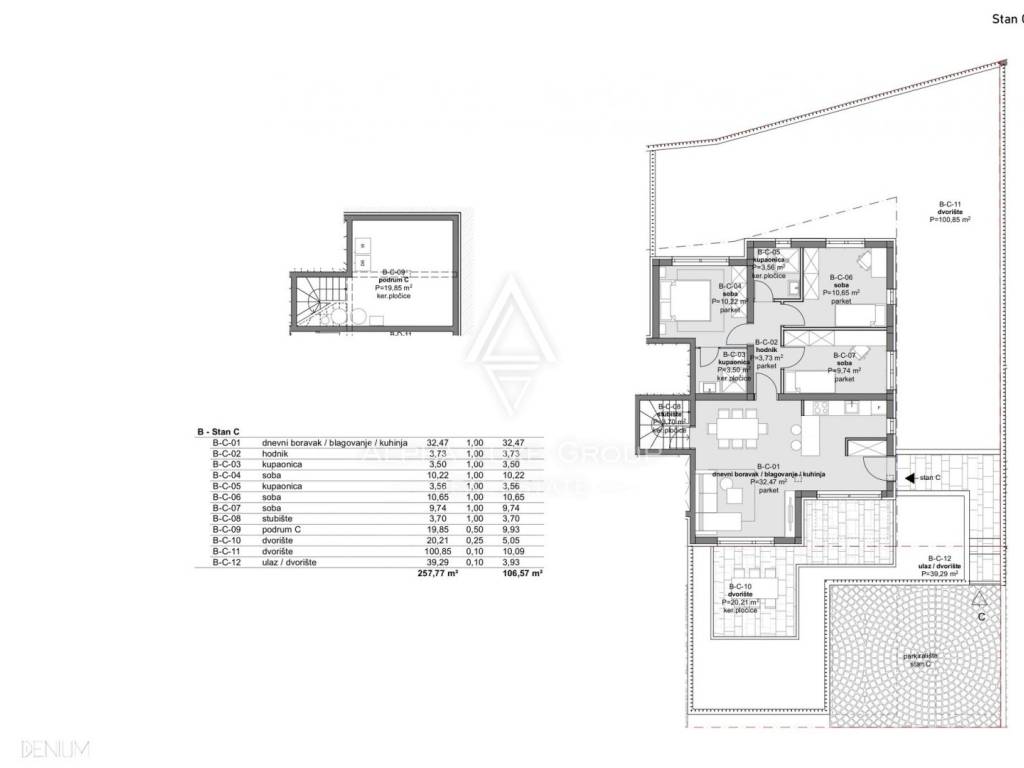
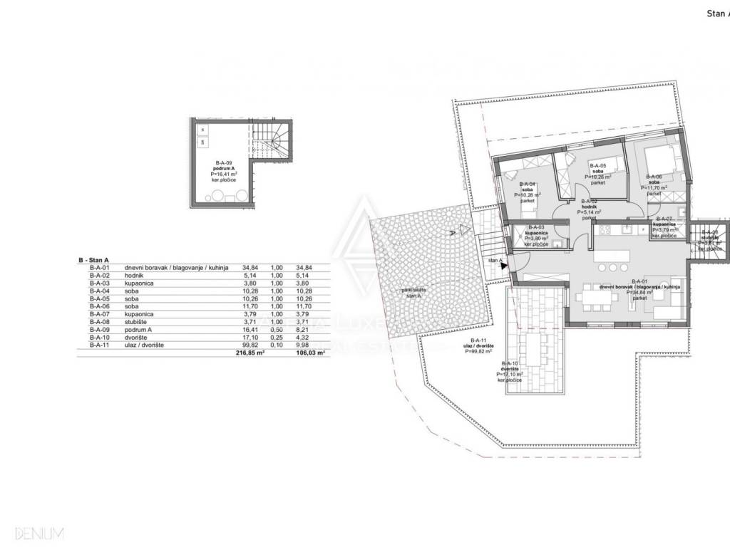
The apartment spans a net area of 99 m² and includes an entrance hall, a bright and spacious living room with a kitchen and dining area, three bedrooms, and two bathrooms, one of which is en suite. A 6 m² terrace extends the living space, providing an outdoor retreat. Additionally, the property boasts a private 48 m² rooftop terrace with breathtaking sea views, a green roof of 37 m², a 15 m² basement for storage, and two dedicated parking spaces.

Modern amenities such as underfloor heating and inverter air conditioning ensure year-round comfort. This property presents an excellent investment opportunity for both tourist rentals and permanent residence, thanks to its sunny and peaceful location and close proximity to essential amenities, including restaurants, markets, and Poreč's vibrant city center.

Highlights of Poreč
Poreč is a renowned coastal town celebrated for its rich cultural heritage, pristine beaches, and lively atmosphere. Its excellent infrastructure and diverse offerings make it a highly sought-after destination for both visitors and residents.

Contact Information:

Robert Budimir
License: 196/2019
Phone: +385 52 204 933
Mobile: +385 95 363 1892
E-mail: robert@alphaluxegroup.com

Marijana Budimir
License: 156/2022
Phone: +385 52 204 933
Mobile: +385 95 363 1893
E-mail: marijana@alphaluxegroup.com

Your satisfaction is our mission. We look forward to future collaboration!

ALPHA LUXE GROUP REAL ESTATE

https://alphaluxegroup.com

ID CODE: ALG-2847

Robert Budimir
Agent s licencom
Mob: +385 95 363 1892
Tel: +385 52 204 933
E-mail: robert@alphaluxegroup.com
https://alphaluxegroup.com

Marijana Budimir
Agent s licencom
Mob: +385 95 363 1893
Tel: +385 52 204 933
E-mail: marijana@alphaluxegroup.com
https://alphaluxegroup.com
Caractéristiques
Typologie
Appartement
Transaction
Vente
Ascenseur
Non
Superficie
126 m²
Chambres/pièces
4
Chambres
3
Balcon
Non
Terrasse
Oui
Box, places stationnement
2 place(s) de parking
Informations sur les prix
Prix
€ 475 000
Prix au m²
3 770 €/m²
Efficacité énergétique
  • Année de construction

    2024
  • Certification énergétique

    Non classifiable
Découvrez chaque recoin de la propriété
+13
Options additionnelles

Contacter l'annonceur

Ou