1/13


Maison individuelle 342 m², Privlaka
€ 1 600 000
Annonce mise à jour le 06/04/2026
Description
référence: DA100066778
ID CODE: DA100066778
Marin Peroš
Asistent u posredovanju
Mob: 099/677-5850
Tel: 023/551-400
E-mail: marin.peros@dogma-nekretnine.com
www.dogma-nekretnine.com
Caractéristiques
- Typologie
- Maison individuelle
- Transaction
- Vente
- Étage
- 1
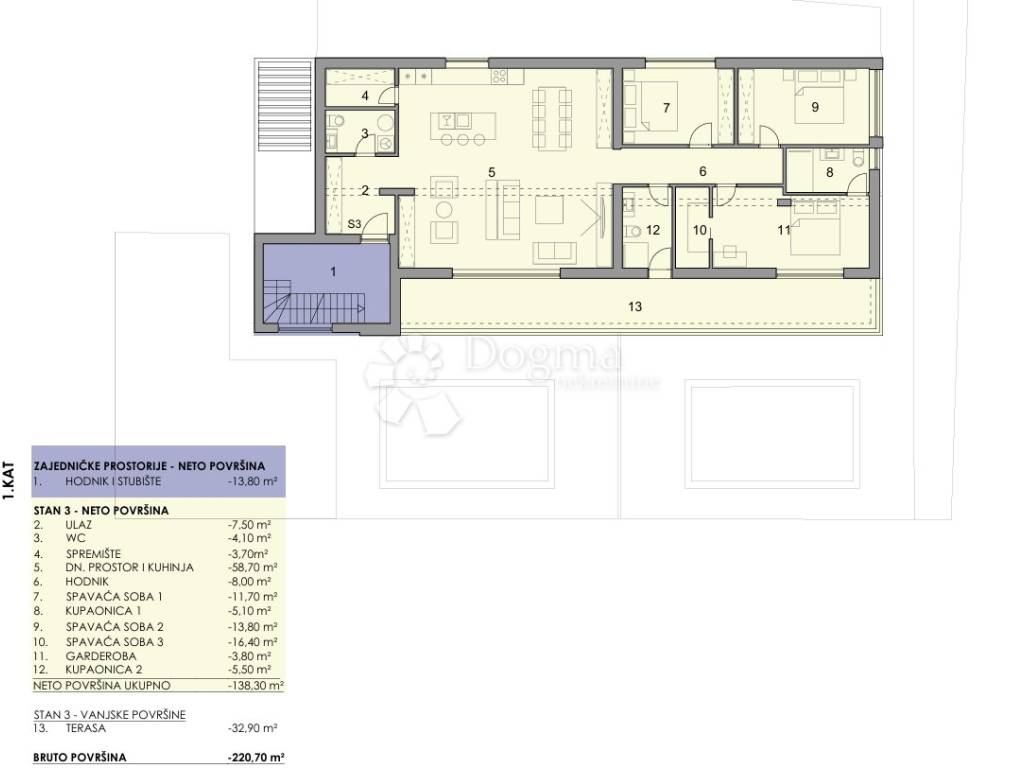
- Superficie
- 342 m² | commerciale 850 m²
- Chambres/pièces
- 5+
- Chambres
- 7
- Bains/douches
- 3+
- Balcon
- Non
- Terrasse
- Oui
Autres caractéristiques
Détail de la surface
Habitation
- Étage
- 1
- Superficie
- 342,0 m²
- Coefficient
- 100%
- Type de superficie
- Habitable
- Sup. commercial
- 342,0 m²
Terrain
- Étage
- Rez-de-chaussée
- Superficie
- 508,0 m²
- Coefficient
- 100%
- Type de superficie
- Accessoires
- Sup. commercial
- 508,0 m²
Informations sur les prix
- Prix
- € 1 600 000
- Prix au m²
- 1 882 €/m²
Découvrez chaque recoin de la propriété
Options additionnelles