Appartement Vodice, Vodice

€ 530 000
5
176 m²
3
Non
Balcon
Terrasse

Remarque

Annonce mise à jour le 30/01/2026
Description

This description has been translated automatically and may not be accurate

référence: 419

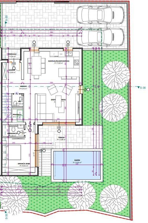
Two-level apartment S2, located on the ground floor and first floor of a modern new building in an attractive and quiet location in Vodice, just 700 m from the beach and town center.

The apartment has a total area of 176.52 m² and consists of:

Ground floor
Entrance hall – 2.22 m²
Kitchen and dining area – 17.69 m²
Living room – 21.15 m²
Hallway 1 – 3.68 m²
Hallway 2 – 8.79 m²
WC – 1.60 m²
Storage room 1 – 1.51 m²
Bathroom 1 – 3.06 m²
Bedroom 1 – 14.42 m²
Covered terrace 1 – 8.69 m²

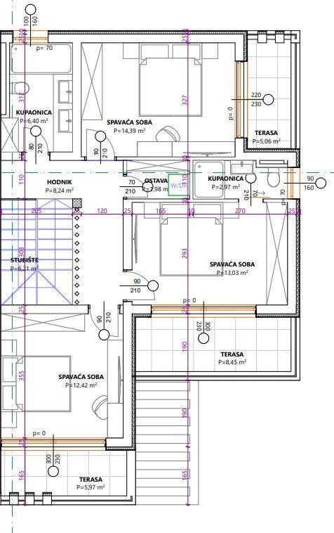
First floor
Staircase – 6.21 m²
Hallway 3 – 8.24 m²
Bathroom 2 – 6.40 m²
Storage room 2 – 1.98 m²
Bedroom 2 – 14.39 m²
Bedroom 3 – 12.42 m²
Bathroom 3 – 2.97 m²
Bedroom 4 – 13.44 m²
Balcony – 8.45 m²
Covered terrace 2 – 5.81 m²
Covered terrace 3 – 5.06 m²

The apartment includes two parking spaces and a private swimming pool.

The completion of construction is planned for the summer of 2026.

The building consists of two floors and a total of two apartments.

All rooms in the apartment are heated and cooled, and underfloor heating is installed throughout the entire apartment.

An excellent opportunity for family living, vacation use, or investment in tourist rental.

For more information or to arrange a viewing, feel free to contact us.

ID CODE: 419

Andro Jakoliš
Mob: +385 99 347 3562
E-mail: andro@materra.estate
www.materra.estate
Caractéristiques
Typologie
Appartement
Transaction
Vente
Étages du bâtiment
1
Ascenseur
Non
Superficie
176 m²
Chambres/pièces
5
Chambres
4
Bains/douches
3
Balcon
Oui
Terrasse
Oui
Box, places stationnement
2 place(s) de parking
Chauffage
Individuel, avec air
Climatisation
Autonome, froid/chaud
Informations sur les prix
Prix
€ 530 000
Prix au m²
3 011 €/m²
Efficacité énergétique
  • Chauffage

    Individuel, avec air
  • Climatisation

    Autonome, froid/chaud
  • Certification énergétique

    Non classifiable
Découvrez chaque recoin de la propriété
+7
Options additionnelles

Contacter l'annonceur

Ou