Appartement 1 chambre neuf, Povljana

€ 154 132
1
49 m²
1
Oui
Balcon
Terrasse

Remarque

Annonce mise à jour le 12/03/2026
Description

référence: 26-116N

NOVOGRADNJA – APARTMANI U POVLJANI (PAG)

Prodaju se moderni apartmani u novogradnji u Povljani na otoku Pagu, na mirnoj lokaciji, cca 800 m od mora. Povljana je prekrasno, mirno mjesto idealno za odmor, život i turistički najam.

Zgrada je visokokvalitetne gradnje i opreme:
lift

Veći apartmani imaju centralno podno grijanje (u cijelom apartmanu) + klimatizacije WindFree.

Manji apartmani (S2 i S5) – u opisu: imaju samo klimatizaciju, a u kupaonici je podno grijanje.
klimatizacije WindFree
svakom apartmanu pripada 1 vanjsko parkirno mjesto
mogućnost kupnje garažnog parkirnog mjesta
spremište/skladište: 4,38 m2 uz svaki apartman

APARTMAN S1 (PRIZEMLJE) – UKUPNO 84,86 m2

CIJENA: 209.520 € PRODANO

Raspored:

- Hodnik – 5,49 m2


- WC – 1,49 m2


- Kupaonica – 3,86 m2


- Soba 1 – 11,34 m2


- Dnevni boravak + kuhinja + blagovaonica – 28,09 m2


- Soba 2 – 11,63 m2


- Balkon – 17,22 m2


- Terasa – 5,74 m2


- Spremište - 4,38 m2



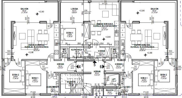
APARTMAN S2 (PRIZEMLJE) – UKUPNO 49,79 m2

CIJENA: 154.132 €

Raspored:

- Hodnik – 3,95 m2


- Kupaonica – 3,92 m2


- Dnevni boravak + kuhinja + blagovaonica – 21,41 m2


- Soba 1 – 11,45 m2


- Loggia – 9,06 m2


- Spremište - 4,38 m2



APARTMAN S4 (1. KAT) – UKUPNO 83,49 m2

CIJENA: 208.050 € PRODANO

Raspored:

- Hodnik – 5,49 m2


- WC – 1,49 m2


- Kupaonica – 3,86 m2


- Soba 1 – 11,34 m2


- Dnevni boravak + kuhinja + blagovaonica – 28,09 m2


- Soba 2 – 11,44 m2


- Balkon – 21,78 m2


- Spremište - 4,38 m2



APARTMAN S6 (1. KAT) – UKUPNO 85,28 m2

CIJENA: 208 560 €

Raspored:

- Hodnik – 5,49 m2


- WC – 1,49 m2


- Kupaonica – 3,92 m2


- Soba 1 – 11,34 m2


- Dnevni boravak + kuhinja + blagovaonica – 28,09 m2


- Soba 2 – 11,44 m2


- Balkon – 21,78 m2


- Balkon – 1,73 m2


- Spremište - 3,74 m2



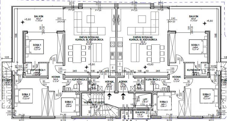
PENTHOUSE S7 – UKUPNO 210,69 m2

Krovna terasa + bazen

CIJENA: 477 029 € PRODANO

2. KAT – raspored:

- Hodnik – 2,92 m2


- WC – 1,45 m2


- Dnevni boravak + kuhinja + blagovaonica – 40,82 m2


- Hodnik – 5,12 m2


- Soba 1 – 13,27 m2


- Kupaonica 1 – 3,36 m2


- Kupaonica 2 – 3,59 m2


- Soba 2 – 15,22 m2


- Soba 3 – 8,89 m2


- Balkon – 17,78 m2


- Stubište – 5,00 m2


- spremište - 3,62 m2



KROVNA TERASA – sadržaji:

- Terasa – 62,44 m2


- Natkrivena terasa – 6,52 m2


- Bazen – 10,38 m2


- Strojarnica – 3,13 m2


- WC – 1,30 m2


- Spremište – 1,17 m2


- Kuhinja – 3,33 m2



PENTHOUSE S8 – UKUPNO 215,95 m2

Krovna terasa + bazen

CIJENA: 478 500 €

2. KAT – raspored:

- Hodnik – 2,92 m2


- WC – 1,45 m2


- Dnevni boravak + kuhinja + blagovaonica – 40,66 m2


- Hodnik – 5,12 m2


- Soba 1 – 13,27 m2


- Kupaonica 1 – 3,36 m2


- Kupaonica 2 – 3,59 m2


- Soba 2 – 15,22 m2


- Soba 3 – 8,96 m2


- Balkon – 17,78 m2


- Balkon – 1,73 m2


- Stubište – 5,00 m2


- Spremište -3,62 m2



KROVNA TERASA – sadržaji:

- Terasa – 62,44 m2


- Natkrivena terasa – 6,38 m2


- Bazen – 10,38 m2


- Strojarnica – 3,13 m2


- WC – 1,30 m2


- Kuhinja – 3,33 m2



Lokacija: Povljana, otok Pag

cca 800 m od mora
mirna lokacija, odlična za odmor i turistički najam

Za više informacija i razgledavanje slobodno nas kontaktirajte.
Si vous voulez en savoir plus, vous pouvez parler à Bc.Monika Sunara.
Caractéristiques
Typologie
Appartement | Classe propriété moyenne gamme
Transaction
Vente
Étages du bâtiment
2
Ascenseur
Oui
Superficie
49 m²
Chambres/pièces
1
Chambres
1
Bains/douches
1
Balcon
Oui
Terrasse
Oui
Chauffage
Individuel, avec radiateurs, alimentation électrique
Climatisation
Autonome
Distance de la mer
800 m
Autres caractéristiques
  • Piscine
Informations sur les prix
Prix
€ 154 132
Prix au m²
3 146 €/m²
Efficacité énergétique
  • Année de construction

    2026
  • État

    Nouveau / En construction
  • Chauffage

    Individuel, avec radiateurs, alimentation électrique
  • Climatisation

    Autonome
Découvrez chaque recoin de la propriété
+10
Options additionnelles

Contacter l'annonceur

Ou