Terrain constructible en Vente

€ 1 038 000
938 m²

Remarque

Annonce mise à jour le 09/02/2026
Description

référence: 1930

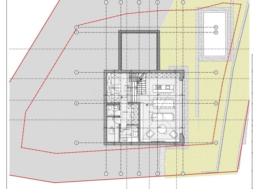
OPATIJA - u prodaji je građevinsko zemljište od 938 m2 s građevinskom dozvolom, jugoistočne orijentacije s prekrasnim pogledom na more.
Zemljište se prodaje s projektom za samostojeću vilu P+1+2, bruto površine 308m2 i s infinity bazenom.
Lokacija zemljišta je idealna za miran život okružen zelenilom a opet nadomak centra Opatije i mora, svega 10ak minuta pješice.

Vlasnik je pravna osoba, te kupac ne plaća porez na promet nekretnina.

VRHUNSKA NEKRETNINA!

ID CODE: 1930

Dražen Barišić
Agent s licencom
Mob: +385 (0) 91 887 5855
Tel: +385 (0) 51 498 068
E-mail: drazen@exclusive-nekretnine.hr
www.exclusive-nekretnine.hr
Caractéristiques
Transaction
Vente
Typologie
Terrain constructible
Superficie
938 m²
Informations sur les prix
Prix
€ 1 038 000
Prix au m²
1 107 €/m²
Découvrez chaque recoin de la propriété
+6
Options additionnelles

Contacter l'annonceur

Ou