map icon

Villa indépendante 222 m², neuve, Primošten

Primošten
€ 940 000
4
222 m²
3+

Remarque

Annonce mise à jour le 02/02/2026
Description

référence: 758-1

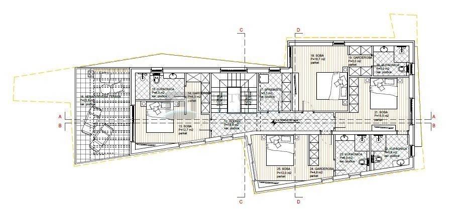
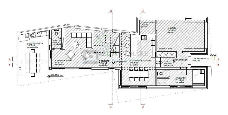
Prodaje se nova obiteljska kuća - villa u Primoštenu, trenutačno u fazi izvođenja grubih radova. Smještena je u mirnom dijelu Primoštena, predio naziva Plat na zemljištu površine cca 550 m2, svega 300 m od mora i cca 750 m od centra mjesta. Villa će se prostirati na dvije etaže. U prizemlju će se nalaziti garaža, strojarnica, wellness, kuhinja s blagovaonicom i dnevni boravak. U dvorištu su planirani natkrivena ljetna kuhinja te bazen. Unutrašnjim stepeništem se ide na kat na kojem su smještene četiri spavaće sobe, svaka s vlastitom kupaonicom i garderobom, spremište i hodnik. Glavna spavaća soba ima izlaz na prostranu, pergolom natkrivenu terasu površine 22 m2. Pri gradnji i opremanju vile će se koristiti sljedeći materijali i oprema:
- porotherm opeka;
- fasada stiropor 10 cm;
- PVC stolarija, podizno-klizne stjenke;
- podovi parket/keramika po izboru kupca
u cjenovnom rangu po troškovniku;
- klime grijanje/hlađenje, dnevni boravak i
kupaonice podno grijanje;
- rolete 5,2 mm, električno podizanje;
- bazen betonski, grijani - dizalica topline.
U dijelu objekta će biti postavljeno podno grijanje putem dizalice topline (Dnevni boravak i kupaonice) , odvojen sustav hlađenja, u garaži punionica za električne automobile Objekt će biti kategoriziran za 5*.
Mogućnost izmjene materijala i opreme po izboru i uz nadoplatu kupca zavisno o mogućnosti prilagodbe i fazi izvedenih radova na objektu.
Planirani rok dovršetka objekta je srpanj 2025.
Si vous voulez en savoir plus, vous pouvez parler à Ana Ivanda.
Caractéristiques
Typologie
Villa indépendante
Transaction
Vente
Étage
1
Superficie
222 m² | commerciale 793 m²
Chambres/pièces
4
Bains/douches
3+
Autres caractéristiques
  • Piscine
Détail de la surface

Habitation

Étage
1
Superficie
222,0 m²
Coefficient
100%
Type de superficie
Habitable
Sup. commercial
222,0 m²

Terrain

Étage
Rez-de-chaussée
Superficie
571,0 m²
Coefficient
100%
Type de superficie
Accessoires
Sup. commercial
571,0 m²
Informations sur les prix
Prix
€ 940 000
Prix au m²
1 185 €/m²
Efficacité énergétique
  • Année de construction

    2025
  • État

    Nouveau / En construction
  • Certification énergétique

    Non classifiable
Découvrez chaque recoin de la propriété
+18
Options additionnelles

Contacter l'annonceur

Ou