Appartement 4 chambres neuf, deuxième étage, Trogir

€ 180 000
4
53 m²
1
2

Remarque

Annonce mise à jour le 05/02/2026
Description

This description has been translated automatically and may not be accurate

référence: 6454-1

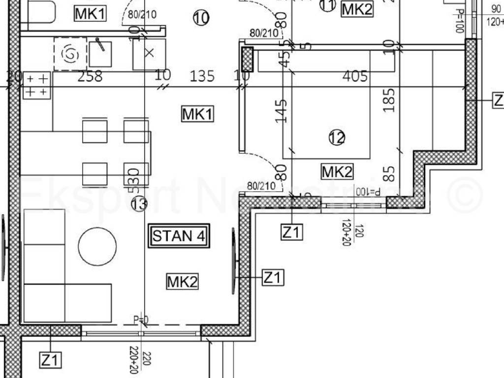
Trogir, two-bedroom apartment 53 m2 in a new building in a smaller residential building with only 7 apartments. The apartment is located on the first floor of the building, north-south-west oriented and consists of two bedrooms, bathroom, hallway, kitchen with dining room and living room, terrace (7 m2). The apartment has one outdoor parking space.The building is located in a quiet and peaceful location near the city center and schools. The start of work is planned for spring 2026 and completion is planned by the end of 2027. Quality equipment (inverter air conditioning, underfloor heating in the bathroom, six-chamber PVC joinery with 3 glasses, quality ceramics. burglar-proof doors, thermal facade, ... etc.). Payment by construction phases.For more information and reservations, contact the agency.
Caractéristiques
Typologie
Appartement
Transaction
Vente
Étage
2 étage
Superficie
53 m²
Chambres/pièces
4
Chambres
2
Bains/douches
1
Climatisation
Centralisé, froid/chaud
Autres caractéristiques
  • Porte blindée
  • Système TV avec parabole satellitaire
Informations sur les prix
Prix
€ 180 000
Prix au m²
3 396 €/m²
Efficacité énergétique
  • Année de construction

    2026
  • État

    Nouveau / En construction
  • Climatisation

    Centralisé, froid/chaud
  • Certification énergétique

    Non classifiable
Découvrez chaque recoin de la propriété
+8
Options additionnelles

Contacter l'annonceur

Ou