Terrain constructible en Vente

€ 104 000
763 m²

Remarque

Annonce mise à jour le 27/03/2026
Description

référence: I28930

Prodaje se građevinsko zemljište površine 763m2 u široj okolici Barbana, smješteno na mirnoj lokaciji idealnoj za odmor.

Zemljište je pravilnog oblika i nalazi se na kraju urbanizirane zone, što pruža dodatni mir i privatnost.
Uz zemljište su svi potrebni priključci: voda, struja i optički internet, što omogućuje brzi početak gradnje.
U cijenu zemljišta uključeno je i suvlasništvo nad pristupnim putem od 450m2, osiguravajući uredan i lagan prilaz.


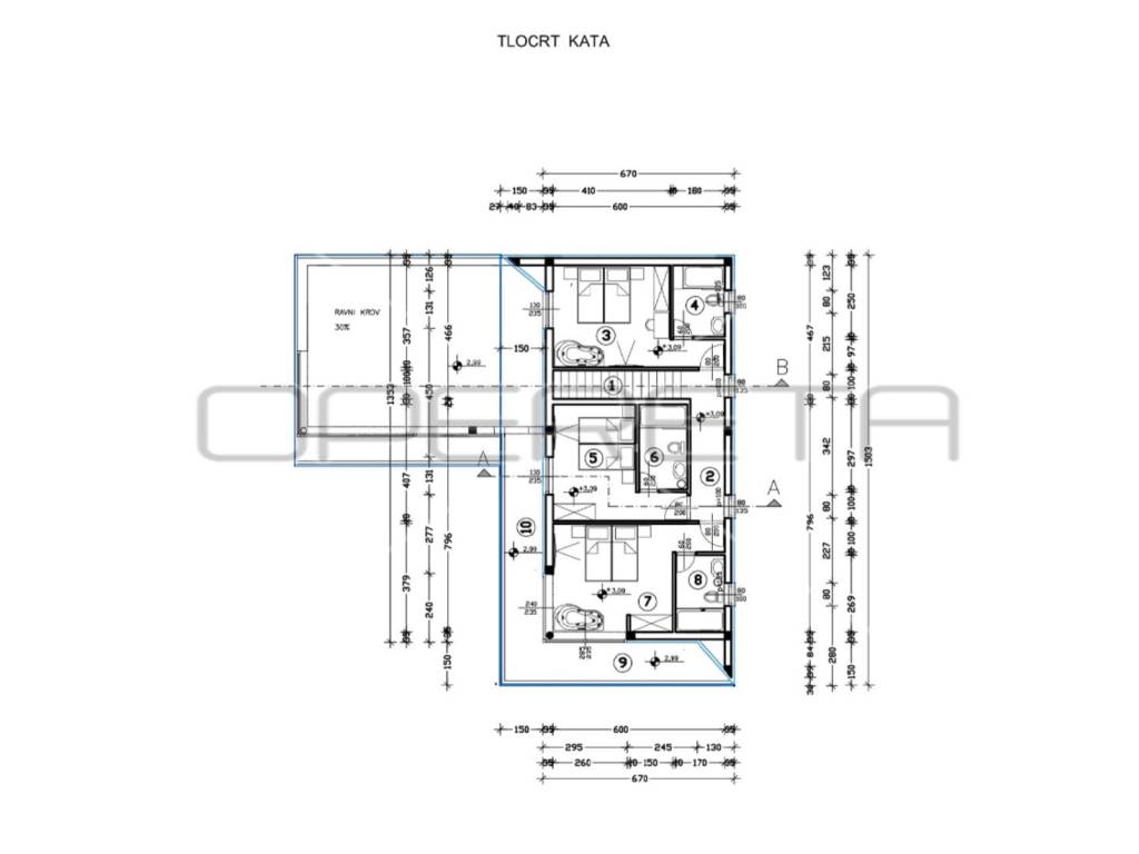
Projekt kuće za odmor
Uz zemljište dolazi i projekt za prekrasnu kuću za odmor na dvije etaže i neto površine 236,42m2 (korisne 188,85m2). Kuća je dizajnirana s pažnjom na udobnost i funkcionalnost, te uključuje:

4 spavaće sobe: tri smještene na katu i jedna u prizemlju, svaka s vlastitom kupaonom za maksimalnu privatnost.
Dodatni WC za goste smješten u prizemlju.
Prostrana terasa i balkon: savršeni za opuštanje i uživanje u prirodi.
Bazen od 48.3m2: idealan za osvježenje tijekom ljetnih mjeseci.

Za projekt je već predan zahtjev za građevinsku dozvolu, što vam dodatno štedi vrijeme i omogućuje brži početak gradnje vašeg budućeg doma za odmor.

Ne propustite ovu jedinstvenu priliku za investiciju u mirno i atraktivno područje s puno potencijala.

Kontaktirajte nas za sve dodatne informacije i dogovor za razgledavanje,
Caractéristiques
Transaction
Vente
Typologie
Terrain constructible
Superficie
763 m²
Informations sur les prix
Prix
€ 104 000
Prix au m²
136 €/m²
Découvrez chaque recoin de la propriété
+4
Options additionnelles

Contacter l'annonceur

Ou