Terrain constructible en Vente

€ 213 000
798 m²

Remarque

Annonce mise à jour le 29/04/2026
Description

référence: I31937

NOVA CIJENA-"PRILIKA", VARAŽDIN . Vrhunsko građevinsko zemljište s izvedbenim projektom
i pravomoćnom građevinskom dozvolom.
Zemljište s građevinskom dozvolom, izvedbenim projektima i plaćenom komunalnom naknadom. ZAGREB, KRALJEVEC, STAMBENI PROJEKT S GRAĐEVINSKOM DOZVOLOM, NOVO U PONUDI!
Iz ponude izdvajamo građevinsko zemljište, koje se sastoji od 2 čestice, ukupne površine 1.394 m2. Zemljište posjeduje građevinsku dozvolu za izgradnju 2 stambene zgrade (katnost: podrum, suteren, prizemlje i uvučeni kat) sa ukupno 6 stanova i bazenom. Stambena jedinica A iznosi 1.124,37 m2 bruto (566,23 m2 neto) dok je stambena jedinica B površine 1.224 m2 bruto (633,18 m2 neto).
Parcela se nalazi na vrhunskoj lokaciji u rezidencijalnom dijelu grada u neposrednoj blizini svih javnih sadržaja te gradskog prijevoza, a opremljena je svim komunalnim prikljčcima (voda, struja, plin, telefonska mreža i kanalizacija).
Trenutno se na parceli nalaze 2 kuće za rušenje.
Rijetka prilika za investiciju! Zaprimaju se ponude.
Idealno za dvije obitelji ili 2 investitora, jer se kasnije mogu etažirati kao 2 zasebne stambene jedinice.
Vrhunska pozicija u slijepoj ulici (zadnje zemljište u slijepoj ulici). u elitnom dijelu Varaždina, na minutu vožnje do samog centra.
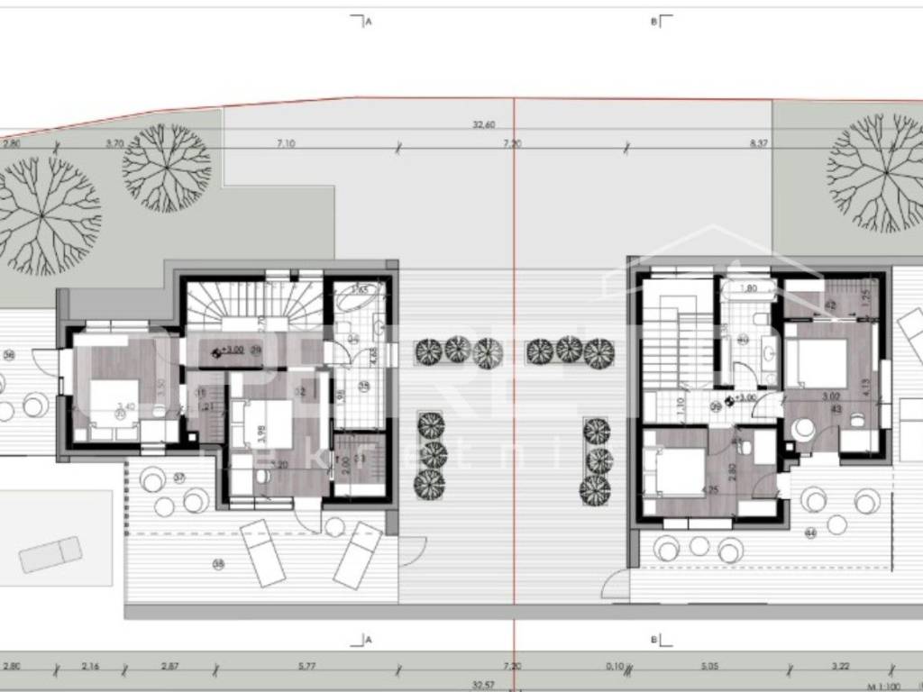
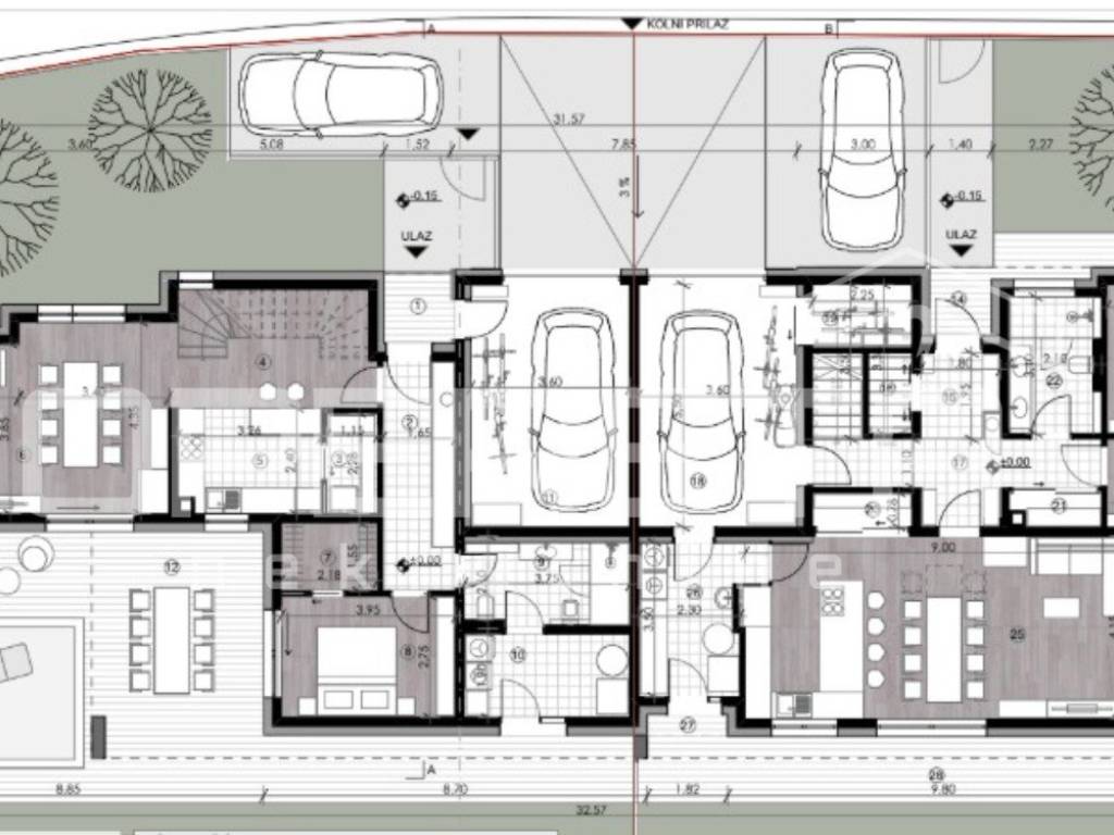
Planirana stambena zgrada biti će nepodrumljena jednokatnica s ravnim krovom, tlocrtne veličine 32.6 m x 10.6 m, maximalne visine 6.50 m, mjereno od kote okolnog terena. Stambena zgrada
obiteljska kuća sadržavati će dvije stambene jedinice, a svaka od njih imat će natkriveni ulaz, natkrivene i nenatkrivene terase, garažu te nenatkriveno parkirno mjesto.
U sjevernoj stambenoj jedinici: garaža s jednim parkirnim mjestom, glavni natkriveni ulaz, ulazni prostor,
stepenice, kupaonica, gospodarstvo s kotlovnicom, spavaća soba, garderoba, stepenice, kuhinja,
izba, blagovaonica s dnevnim boravkom i vanjska natkrivena i nenatkrivena terasa. Ova stambena
jedinica sadrži bazen dimenzija 7x4 m.
U južnoj stambenoj jedinici: garaža s jednim parkirnim mjestom i spremištem, glavni natkriveni ulaz,
ulazni prostor, stepenice i hodnik, kupaonica, garderoba, spavaća soba s garderobom, gospodarstvo
s kotlovnicom, kuhinja, blagovaonica i dnevni boravak te vanjska natkrivena i nenatkrivena terasa.
Na katu će biti sljedeći sadržaji:
U sjevernoj stambenoj jedinici: hodnik, spavaća soba 2, garderoba 2, spavaća soba 3, garderoba 3, kupaonica sa saunom i vanjska natkrivena i nenatkrivena terasa.
U južnoj stambenoj jednici: hodnik, kupaonica, spavaća soba 2, garderoba 2, spavaća soba 3 te
natkrivena i nenatkrivena terasa.
Grijanje/hlađenje će biti izvedeno za svaki stan posebno putem dizalice topline i klima jedinica.
Caractéristiques
Transaction
Vente
Typologie
Terrain constructible
Superficie
798 m²
Informations sur les prix
Prix
€ 213 000
Prix au m²
267 €/m²
Découvrez chaque recoin de la propriété
+14
Options additionnelles

Contacter l'annonceur

Ou