Appartement 4 chambres neuf, rez-de-chaussée, Kukci - Nova Vas, Poreč

€ 390 000
4
96 m²
3+
0
Non

Remarque

Annonce mise à jour le 28/04/2026
Description

This description has been translated automatically and may not be accurate

référence: I33213

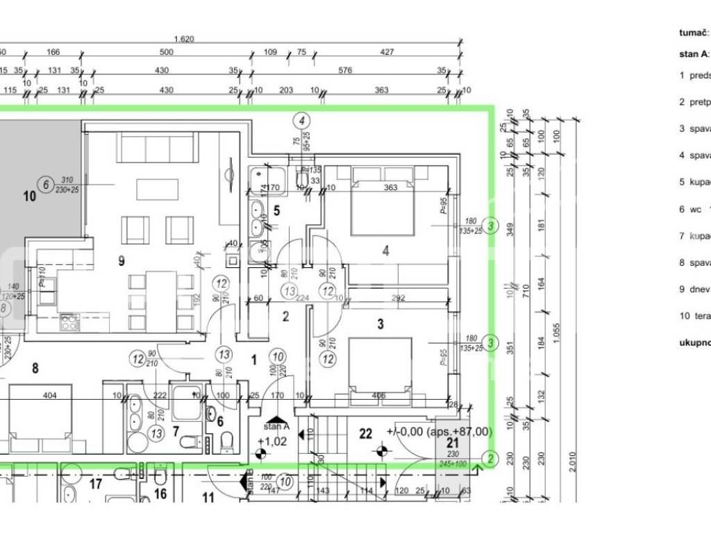
From our offer, we highlight a modern ground floor apartment with a private pool, located in a quiet area near Poreč.

The apartment has a total area of 96.56 m and is situated in a smaller residential building with four residential units. It consists of an entrance hallway, a living room with an open concept kitchen and dining area, three bedrooms, two bathrooms (one of which is part of the master bedroom), a separate toilet, and a terrace accessible from the living room. The terrace leads to the private pool and sunbathing area, while the enclosed garden ensures privacy.

The apartment includes a storage room in the building's basement and two parking spaces.

It is equipped with underfloor heating via a heat pump and air conditioning in all rooms. It is sold furnished. High-quality materials were used in the construction, including triple glazing, wooden interior and aluminum exterior joinery, and stone floors.

The property is owned by a legal entity, and VAT is included in the price.

It is located in a settlement 4 km from Poreč, close to beaches and everyday amenities.
Caractéristiques
Typologie
Appartement
Transaction
Vente
Étage
Rez-de-chaussée
Ascenseur
Non
Superficie
96 m²
Chambres/pièces
4
Chambres
3
Bains/douches
3+
Meublé
Non
Box, places stationnement
1 place(s) de parking
Chauffage
Individuel, alimentation électrique
Climatisation
Froid/chaud
Autres caractéristiques
  • Piscine
Informations sur les prix
Prix
€ 390 000
Prix au m²
4 063 €/m²
Efficacité énergétique
  • Année de construction

    2024
  • État

    Nouveau / En construction
  • Chauffage

    Individuel, alimentation électrique
  • Climatisation

    Froid/chaud
Découvrez chaque recoin de la propriété
+18
Options additionnelles

Contacter l'annonceur

Ou