Appartement 4 chambres neuf, deuxième étage, Luka, Poreč

€ 420 000
4
108 m²
1
2
Non

Remarque

Annonce mise à jour le 28/04/2026
Description

This description has been translated automatically and may not be accurate

référence: I32843

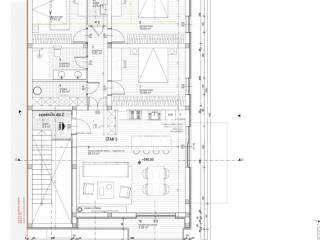
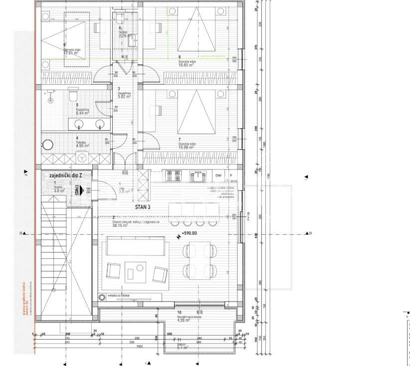
Istria, Funtana - three-bedroom apartment with terraces and modern amenities 700 m from the sea

from our offer we highlight an apartment on the second floor of a small residential building, only 700 meters from the sea.
It consists of a living room connected to the kitchen and dining room, creating a modern, functional living space.
The apartment has three bedrooms, each with enough space to provide maximum comfort and privacy.
Two covered terraces that give the apartment additional value.
For optimal convenience throughout the year, it is equipped with air conditioning for heating and cooling in each room, while underfloor heating in the bathroom provides additional comfort.
This property is ideal for family life, vacation or as an investment for tourist rental.
Caractéristiques
Typologie
Appartement
Transaction
Vente
Étage
2 étage
Ascenseur
Non
Superficie
108 m²
Chambres/pièces
4
Chambres
3
Bains/douches
1
Meublé
Non
Box, places stationnement
1 place(s) de parking
Climatisation
Froid/chaud
Informations sur les prix
Prix
€ 420 000
Prix au m²
3 889 €/m²
Efficacité énergétique
  • Année de construction

    2025
  • État

    Nouveau / En construction
  • Climatisation

    Froid/chaud
  • Certification énergétique

    Exempt
Découvrez chaque recoin de la propriété
+2
Options additionnelles

Contacter l'annonceur

Ou