Appartement 4 chambres neuf, rez-de-chaussée, Luka, Poreč

€ 460 000
4
119 m²
1
0
Non

Remarque

Annonce mise à jour le 27/03/2026
Description

This description has been translated automatically and may not be accurate

référence: I32839

Spacious three-bedroom apartment with terraces and modern amenities 700 m from the sea

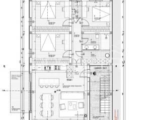
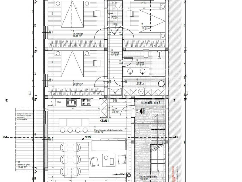
From our offer, we highlight an apartment on the ground floor of a smaller residential building, with an area of 126 m2, located just 700 meters from the sea.
It consists of a large living room that provides exceptional comfort and plenty of natural light thanks to large glass surfaces.
The living room is connected to the kitchen and dining area, creating a modern, functional living space.
The apartment has three bedrooms, each spacious enough to ensure maximum comfort and privacy. Two covered terraces add extra value to the apartment.
For optimal comfort throughout the year, it is equipped with air conditioning for heating and cooling in every room, while underfloor heating in the bathroom provides comfort, especially in the winter months.

This property is ideal for family living, vacation, or as an investment for tourist rental.
Caractéristiques
Typologie
Appartement
Transaction
Vente
Étage
Rez-de-chaussée
Ascenseur
Non
Superficie
119 m²
Chambres/pièces
4
Chambres
3
Bains/douches
1
Meublé
Non
Box, places stationnement
1 place(s) de parking
Climatisation
Froid/chaud
Informations sur les prix
Prix
€ 460 000
Prix au m²
3 866 €/m²
Efficacité énergétique
  • Année de construction

    2025
  • État

    Nouveau / En construction
  • Climatisation

    Froid/chaud
  • Certification énergétique

    Exempt
Découvrez chaque recoin de la propriété
+2
Options additionnelles

Contacter l'annonceur

Ou