Appartement 2 chambres neuf, deuxième étage, Krapinske Toplice

€ 173 000
2
63 m²
1
2
Oui

Remarque

Annonce mise à jour le 07/04/2026
Description

This description has been translated automatically and may not be accurate

référence: I34683

FOR SALE, APARTMENT, NEW BUILD, KRAPINSKE TOPLICE - CENTER, 2-ROOM, 63 m2

Exclusive and high-quality new build in close proximity to the center of Krapinske Toplice and the Aquae Vivae thermal spa.
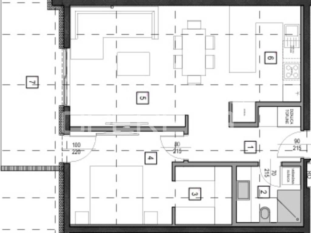
The apartment marked S19 is located on the 2nd floor of a residential building under construction with a total of 3 floors. It consists of a large "open space" living room with kitchen and dining area and access to the balcony, a bedroom/study, a bathroom with a toilet, a wardrobe, and an entrance area.

Energy class A+. Primary heating and cooling via inverter multi-split heat pumps, underfloor heating, condensing gas boilers for hot water preparation.
External joinery in PVC execution with double glazing, while internal joinery is in aluminum and wood.

The building is constructed to the highest quality standards, with 5 floors and a total of 25 modernly equipped residential units.
Along with the apartment, at least 1 outdoor parking space is sold for the price of 10,000 euros.
Planned completion by the end of 2027.

Unique, quiet, yet very attractive and sought-after location in close proximity to the center of Krapinske Toplice and all amenities necessary for quality living, public transport, as well as the Aquae Vivae water park and the Magdalena clinic. 30 minutes drive to Zagreb.
The buyer does not pay real estate transfer tax.
Agency recommendation!
Caractéristiques
Typologie
Appartement
Transaction
Vente
Étage
2 étage
Ascenseur
Oui
Superficie
63 m²
Chambres/pièces
2
Chambres
1
Bains/douches
1
Meublé
Non
Box, places stationnement
1 place(s) de parking
Chauffage
Individuel, alimentation électrique
Climatisation
Froid/chaud
Informations sur les prix
Prix
€ 173 000
Prix au m²
2 746 €/m²
Efficacité énergétique

Consommation d'énergie

A+

Options additionnelles

Contacter l'annonceur

Ou