Maison individuelle 178 m², neuve, Vodnjan

€ 1 000 050
4
178 m²
3
Non

Remarque

Annonce mise à jour le 27/03/2026
Description

This description has been translated automatically and may not be accurate

référence: I34541

A beautiful modern villa is for sale located in a rare and extremely attractive location near the center of Vodnjan, on the very edge of the construction zone, surrounded by olive groves and untouched nature.

The villa covers 178 m of net living space, spread over two floors, and offers the perfect combination of privacy, comfort and top-quality construction. Special attention has been paid to the selection of materials, equipment and modern technical solutions, ensuring a high level of comfort and functionality.

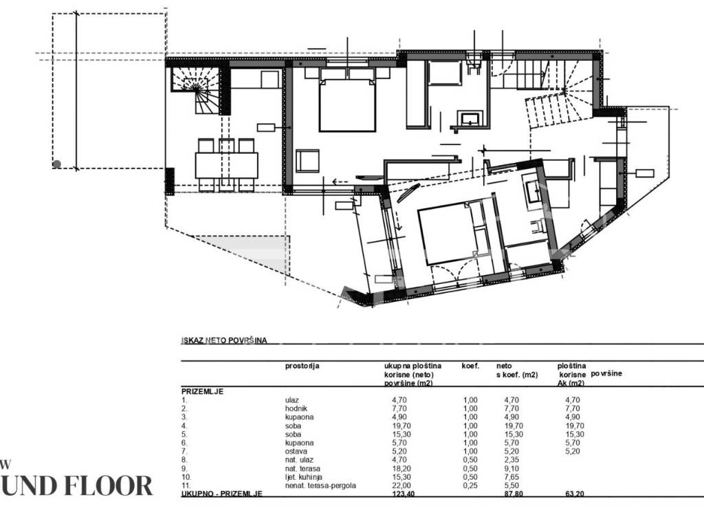
The ground floor consists of an entrance hall, utility room, two spacious bedrooms - each with its own bathroom and access to a terrace - and a summer kitchen ideal for outdoor living and socializing during the warmer months.

The first floor includes an additional bedroom with a bathroom, a living room with a kitchen and dining room, and access to a terrace with a beautiful panoramic view of the sea. There is also an additional toilet on the floor.
The floors are connected by an internal and external staircase, which allows for flexible communication and the possibility of separate use of the space.

The carefully landscaped outdoor area includes a swimming pool with hydromassage, additional storage, an outdoor toilet, a landscaped garden and a garage, creating the perfect environment for relaxation and enjoyment of the Mediterranean lifestyle.

Technical characteristics and equipment:

* underfloor heating in all rooms
* cooling system throughout the house
* alarm system
* video surveillance
* ALU carpentry
* lawn irrigation system
* preparation for a solar system

The property is located in a prime location close to all amenities and the sea, making it an ideal choice for year-round living, a luxury vacation or a safe investment in a tourist rental.

Distance from the city center: 1.5 km
Distance from the beach: 6.5 km (Fažana)
Motorway exit: 2.5 km
Distance from supermarkets, restaurants..2 km
Caractéristiques
Typologie
Maison individuelle
Transaction
Vente
Étage
1
Ascenseur
Non
Superficie
178 m² | commerciale 663 m²
Chambres/pièces
4
Chambres
3
Bains/douches
3
Meublé
Non
Box, places stationnement
1 place(s) de parking
Chauffage
Individuel, alimentation électrique
Climatisation
Froid/chaud
Autres caractéristiques
  • Piscine
Détail de la surface

Habitation

Étage
1
Superficie
178,0 m²
Coefficient
100%
Type de superficie
Habitable
Sup. commercial
178,0 m²

Terrain

Étage
Rez-de-chaussée
Superficie
485,0 m²
Coefficient
100%
Type de superficie
Accessoires
Sup. commercial
485,0 m²
Informations sur les prix
Prix
€ 1 000 050
Prix au m²
1 508 €/m²
Efficacité énergétique
  • Année de construction

    2026
  • État

    Nouveau / En construction
  • Chauffage

    Individuel, alimentation électrique
  • Climatisation

    Froid/chaud
Découvrez chaque recoin de la propriété
+10
Options additionnelles

Contacter l'annonceur

Ou