Bureau - Cabinet en Vente

€ 403 300
2
109 m²

Remarque

Annonce mise à jour le 27/03/2026
Description

référence: I30253

Prodaje se poslovni prostor u prizemlju stambene zgrade u izgradnji s ukupno tri kata, smješten u mirnom području blizu Ližnjana i Medulina.

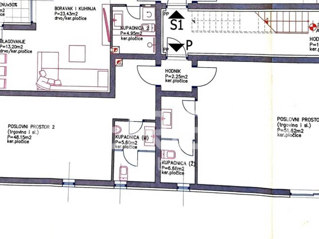
Poslovni prostor ukupne neto površine 109,41 m
- Hodnik: 2.25 m2
- Poslovni prostor 1: 51.62 m2
- Kupaonica: 6.68 m2
- Poslovni prostor 2: 44.36 m2
- Natkrivena terasa: 9 m2

Uz izvanredan raspored i visokokvalitetnu gradnju, idealan je za trgovinu, ured ili tihu djelatnost.

Poslovni prostor se ističe blizinom mora (3,5 km) i visokokvalitetnom gradnjom. Korištena je PVC i aluminijska stolarija, osiguravajući dugotrajnost i energetsku učinkovitost. Planirani završetak radova je u rujnu 2025. godine.

Udaljenosti:
- Trgovina: 200 m
- Crkva: 250 m
- Restoran: 100 m
- Dječji vrtić: 400 m
- More: 3,5 km
- Autocesta: 8,5 km
- Aerodrom: 10 km

Za sve zainteresirane za razgledavanje ili dodatne informacije, slobodno nas kontaktirajte.

O općini Ližnjan i Puli:
Ližnjan je mirna općina u južnom dijelu Istre, poznata po očuvanoj prirodi i slikovitim plažama. Ovo područje nudi bogatu povijest, miran život i odličnu povezanost s većim gradovima. Pula, udaljena nekoliko kilometara, najveći je istarski grad s bogatom kulturnom baštinom i atrakcijama poput Arene. Pula nudi sve urbane pogodnosti, dok Ližnjan pruža idealan balans prirode i privatnosti.
Caractéristiques
Transaction
Vente
Typologie
Bureau - Cabinet
Superficie
109 m²
Chambres/pièces
2 chambres/pièces
Informations sur les prix
Prix
€ 403 300
Prix au m²
3 700 €/m²
Efficacité énergétique
  • État

    Nouveau / En construction
  • Chauffage

    Individuel, alimentation électrique
  • Climatisation

    Froid/chaud
Options additionnelles

Contacter l'annonceur

Ou