Bureau - Cabinet en Location

€ 3 640/mois
459 m²

Remarque

Annonce mise à jour le 15/04/2026
Description

référence: I30832

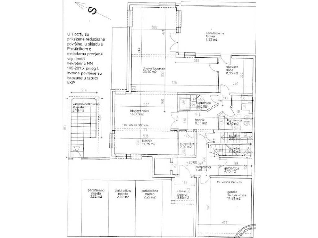
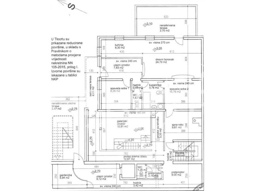
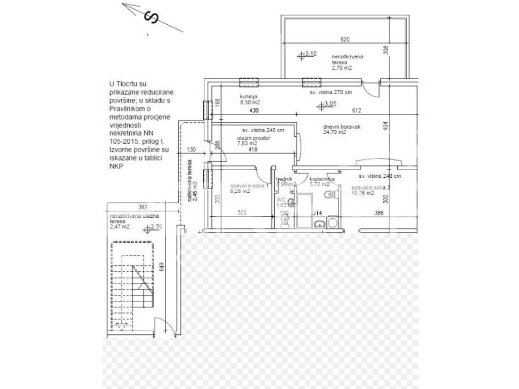
ZAKUP UREDA, ZAGREB, ŠALATA, ZELENJAK, 458,50 M2
U zakup se daje samostojeći objekt na mirnoj lokaciji idealan za uredsku djelatnost. Objekt se sastoji od suterena veličine 68,24 m2+ terasa od 19 m2, prizemlja od 95,85 m2 + terasa 27,56 m2, međukata od 20,06 m2, prvog kata od 129,58 m2 + terasa 8,30 m2 i drugog kata od 129,58 m2 + loggia 5,92 m2.
Prostor je klimatiziran te pun svjetlosti i ugodan za rad. Parking je dostupan uz dogovor, a proporcionalno unajmljenom prostoru (parking mjesta ili garaža). Na izraženu cijenu se ne obračunava PDV. Za sva pitanja stojimo na raspolaganju!
Caractéristiques
Transaction
Location
Typologie
Bureau - Cabinet
Superficie
459 m²
Box, places stationnement
1 place(s) de parking
Informations sur les prix
Prix
€ 3 640/mois
Prix au m²
8 €/m²
Détails des coûts
Caution
Non indiquée
Efficacité énergétique
  • État

    Nouveau / En construction
  • Chauffage

    Collectif, alimenté au gaz
  • Climatisation

    Froid/chaud
Découvrez chaque recoin de la propriété
+3
Options additionnelles

Contacter l'annonceur

Ou