Maison individuelle 238 m², neuve, Malinska

€ 910 000
4
238 m²
2
Cave

Remarque

Annonce mise à jour le 02/05/2026
Description

This description has been translated automatically and may not be accurate

référence: k1070

Air conditioning, Building permit, City water supply system, Condominium conversion carried out, Detached building, Garden grill, High-quality construction, Large terrace, Luxurious, Maintained garden, New building, Occupancy permit, Paved access road, Project documentation, PVC joinery, Sauna, Several parking spaces, Situated in a peaceful part of the island, Storage, Swimming pool, Title deed.

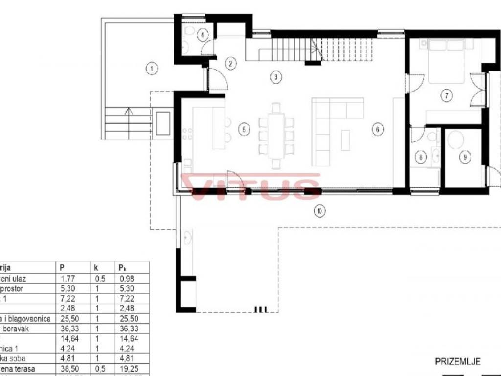
This luxurious modern villa of 237,69 m2 is located in a quiet area in the wider surroundings of Malinska on a plot of 880 m2. It consists of ground and first floor. The ground floor consists of an entrance area, kitchen with a dining room and a living room and access to a covered terrace, one bedroom with its own bathroom and access to an uncovered terrace, a technical room and a toilet. There are three bedrooms on the first floor, two share a bathroom and also have access to a nice terrace, while the master bedroom has its own bathroom and access to a private balcony. On the spacious garden of 504 m2, there is a heated pool of 46 m2 with a sunbathing area, a lounge area with a fire pit in the middle, an outdoor fireplace, a parking space for two cars, and an auxiliary building of 22.5 m2, which consists of basement and ground floor. On the ground floor o15 m2 is for SPA area with sauna, jacuzzi and wellness for relaxation, and the remaining 7.5 m2 in the basement of the building is intended for storage. The villa is equipped with high-quality equipment, which includes high-quality carpentry, floor coverings made of high-quality ceramics and natural stone, high-quality sanitary facilities, ceiling air conditioning and underfloor heating with a heat pump. The villa is currently under construction, and the completion of the works is expected in 2024.
Caractéristiques
Typologie
Maison individuelle
Transaction
Vente
Étages du bâtiment
2
Superficie
238 m²
Chambres/pièces
4
Chambres
4
Bains/douches
2
Meublé
Non
Box, places stationnement
2 place(s) de parking
Climatisation
Froid/chaud
Autres caractéristiques
  • Piscine
Informations sur les prix
Prix
€ 910 000
Prix au m²
3 824 €/m²
Efficacité énergétique

Consommation d'énergie

A+

Découvrez chaque recoin de la propriété
+12
Options additionnelles

Contacter l'annonceur

Ou