Terrain constructible en Vente

€ 260 000
422 m²

Remarque

Annonce mise à jour le 09/02/2026
Description

référence: 2162

Istra, Funtana Ekskluzivno zemljište s arhitektonski uređenim projektom kuće

Na prodaju je građevinsko zemljište pravilnog oblika površine 422 m, smješteno na atraktivnoj i mirnoj lokaciji u Funtani, svega 700 metara od mora.

Zemljište dolazi s arhitektonski uređenim projektom moderne obiteljske kuće, koji je predan na obradu. Projekt je pažljivo osmišljen kako bi se postigao savršen spoj elegantnog dizajna, funkcionalnosti i udobnosti.

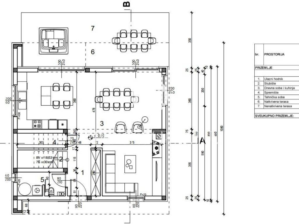
Planirana kuća prostire se na dvije etaže, ukupne neto površine 174,13 m.

U prizemlju su predviđeni ulazni hodnik, spremište, WC/tehnička soba te prostrani dnevni boravak s kuhinjom i blagovaonicom, koji ima izlaz na prostranu djelomično natkrivenu terasu.

Stepenicama se dolazi na prvi kat, gdje se nalazi master spavaća soba s vlastitom kupaonicom i natkrivenim balkonom, te još dvije spavaće sobe, od kojih jedna ima natkriveni balkon, kao i zajednička kupaonica.

Sva potrebna infrastruktura struja, voda i kanalizacija nalazi se u neposrednoj blizini zemljišta, što omogućava brz početak gradnje.
Lokacija pruža mir, privatnost i blizinu mora, čineći ovu nekretninu izvrsnim izborom za izgradnju kuće za stanovanje, odmor ili investiciju.

Razgled nekretnine moguć je uz potpisan ugovor o posredovanju koji je temelj za daljnje postupanje u vezi s kupoprodajom i naplatom provizije sukladno Zakonu o posredovanju u prometu nekretnina. U slučaju kupoprodaje agencijska provizija iznosi 3% + PDV i naplaćuje se prilikom sklapanja predugovora/ugovora o kupoprodaji.
Si vous voulez en savoir plus, vous pouvez parler à Ivica Barić.
Caractéristiques
Transaction
Vente
Typologie
Terrain constructible
Superficie
422 m²
Informations sur les prix
Prix
€ 260 000
Prix au m²
616 €/m²
Découvrez chaque recoin de la propriété
+10
Options additionnelles

Contacter l'annonceur

Ou