Appartement neuf, deuxième étage, Privlaka

€ 300 000
5
82 m²
1
2

Remarque

Annonce mise à jour le 05/03/2026
Description

référence: 567-1

NOVOGRADNJA SVEGA 200 M DO MORA! UASELJIVO!
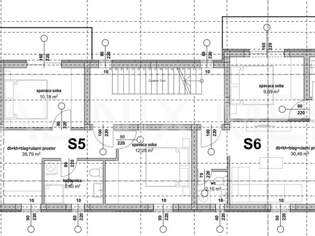
Zgrada sa ukupno šest stambenih jedinica, stanovima u prizemlju pripada dio vrta, dok stanovima na drugom katu pripada krovna terasa sa pogledom na more! Kvalitetna gradnja: pune AB ploče, zidana konstrukcija, termoblok 25+fasadni sustav debljine 8 cm. Stolarija PVC u antracit tonu, rolete+komarnici. Protupožarna/protuprovlana (Kolnoa) ulazna vrata u stanove. Postavljen kamen u stubište. Prvoklasni laminatni podovi i keramika u stanovima, podno grijanje u svim prostorijama (grijači kabel u estrihu). Klima uređaj u svakoj prostoriji.
Svakom stanu pripada po dva vanjska parking mjesta.
Predmetni stan oznake S6 nalazi se na drugom katu zgrade ukupne površine 81,98 m2. Stan se sastoji od kuhinje, blagovaonice i dnevnog boravka sa izlazom na natkrivenu terasu, hodnika, dvije spavaće sobe, wc-a/praonice. Stanu pripada KROVNA TERASA sa pogledom na more površine te dva vanjska parkirna mjesta.
Za više informacija, slobodno nas kontaktirajte na +385 95 395 4140
Si vous voulez en savoir plus, vous pouvez parler à Ivana Zanki Kršlović.
Caractéristiques
Typologie
Appartement
Transaction
Vente
Étage
2 étage
Superficie
82 m²
Chambres/pièces
5
Chambres
2
Bains/douches
1
Meublé
Non
Climatisation
Centralisé, froid/chaud
Autres caractéristiques
  • Porte blindée
  • Vidéophone
Informations sur les prix
Prix
€ 300 000
Prix au m²
3 659 €/m²
Efficacité énergétique
  • Année de construction

    2025
  • État

    Nouveau / En construction
  • Climatisation

    Centralisé, froid/chaud
  • Certification énergétique

    Non classifiable
Découvrez chaque recoin de la propriété
+2
Options additionnelles

Contacter l'annonceur

Ou