Appartement 2 chambres Trogir, Trogir

€ 193 000
2
57 m²
0
Non
Terrasse

Remarque

Annonce mise à jour le 20/02/2026
Description

This description has been translated automatically and may not be accurate

référence: 225

We are mediating the sale of a modern two-bedroom apartment in Trogir, situated in a quiet and pleasant location, close to a kindergarten, the Marisa shopping centre, and all essential amenities required for comfortable everyday living.

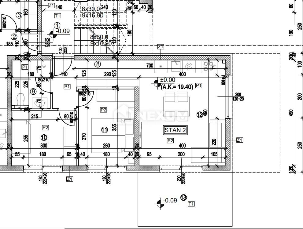
The apartment is located on the ground floor of the building and has a total area of 57.51 m². Of this, 46.63 m² is enclosed living space, while 10.88 m² consists of a ground-level terrace, ideal for relaxing and enjoying the outdoors.

A special feature of this property is the spacious private yard/garden of 32.65 m², offering numerous possibilities for landscaping – from creating a green oasis or children’s corner to a barbecue area or additional lounge zone.

The layout includes:

two bedrooms

bathroom

entrance hall

kitchen with dining area and open-plan living room

terrace with direct access to the garden

The apartment comes with one designated parking space, with the option to purchase an additional parking space at an extra cost.

The planned start of construction is autumn 2026. The future buyer has the opportunity to choose flooring and other finishing elements, allowing the apartment to be tailored to personal preferences and style.

For more information and reservations, please feel free to contact us.

ID CODE: 225

Stipe Ćurak
Agent s licencom
Mob: +385 95 886 8224
Tel: +385 95 886 8224
E-mail: stipe@nexumnekretnine.hr
www.nexumnekretnine.hr
Caractéristiques
Typologie
Appartement
Transaction
Vente
Étage
Rez-de-chaussée
Ascenseur
Non
Superficie
57 m²
Chambres/pièces
2
Chambres
2
Balcon
Non
Terrasse
Oui
Box, places stationnement
1 place(s) de parking
Chauffage
Individuel, avec air
Informations sur les prix
Prix
€ 193 000
Prix au m²
3 386 €/m²
Efficacité énergétique
  • Chauffage

    Individuel, avec air
  • Certification énergétique

    Non classifiable
Découvrez chaque recoin de la propriété
+8
Options additionnelles

Contacter l'annonceur

Ou