Appartement 3 chambres Poreč, Luka, Poreč

€ 359 000
3
95 m²
1
1
Non

Remarque

Annonce mise à jour le 28/04/2026
Description

This description has been translated automatically and may not be accurate

référence: 2145

PLEASANT FAMILY APARTMENT ON THE FIRST FLOOR WITH LOGGIA – POREČ

In a quiet and pleasant location in Poreč, just a few minutes’ walk from the well-maintained beach, there is a first-floor apartment that exudes a sense of home and comfort. The beautiful 9.5 m² loggia provides a perfect space for morning coffee, relaxation, or family gatherings.

High-quality construction and a carefully designed layout make this property ideal for family living, a seaside holiday, or a secure investment.

PROPERTY INFORMATION

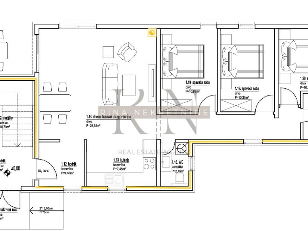
Apartment area: 95.13 m²

Floor: 1st floor

Type of building: new construction

Energy class: A

Planned move-in: 31.05.2026

Number of units in the building: 5

Location: quiet residential area, dead-end street with very little traffic

ROOM LAYOUT
The apartment consists of:

Spacious living room

Kitchen

Dining area

9.5 m² loggia

Hallway

Three bedrooms

Bathroom

Separate WC

The living room opens onto the beautiful loggia, offering a comfortable space to enjoy the outdoors and fresh air.

EQUIPMENT AND TECHNICAL FEATURES

4 Mitsubishi air conditioners (living room and all bedrooms)

Underfloor heating throughout – heat pump

Domestic hot water prepared via heat pump (175 L tank)

Triple-glazed PVC windows with built-in insect screens

Electric shutters

Security entrance door

Chimney in living room – possibility to install a fireplace

Private parking space in front of the building – possibility to purchase an additional space

High-quality block construction

10 cm thermal insulation

LOCATION AND DISTANCES

Public transport stop – 500 m

Beach – 800 m

City center – 2 km

ADDITIONAL INFORMATION FOR BUYERS

The property is VAT registered

Buyer does not pay the 3% real estate transfer tax

For more information or to schedule a viewing, please contact:
+385 91 2848 310, Višnja

ID CODE: 2145

Višnja Broqi
Agent s licencom
Mob: +385 91 284 8310
Tel: +385 1 638 2643
E-mail: info@rina-nekretnine.hr
www.rina-nekretnine.hr
Caractéristiques
Typologie
Appartement
Transaction
Vente
Étage
1 étage
Étages du bâtiment
2
Ascenseur
Non
Superficie
95 m²
Chambres/pièces
3
Chambres
3
Bains/douches
1
Balcon
Non
Terrasse
Non
Box, places stationnement
1 place(s) de parking
Climatisation
Autonome, froid/chaud
Autres caractéristiques
  • Porte blindée
Informations sur les prix
Prix
€ 359 000
Prix au m²
3 779 €/m²
Efficacité énergétique
  • Année de construction

    2026
  • Climatisation

    Autonome, froid/chaud
  • Certification énergétique

    Non classifiable
Plan
Découvrez chaque recoin de la propriété
+8
Options additionnelles

Contacter l'annonceur

Ou