Appartement 4 chambres excellent état, quatrième étage, Ciglenica, Zagreb

€ 1 950/mois
4
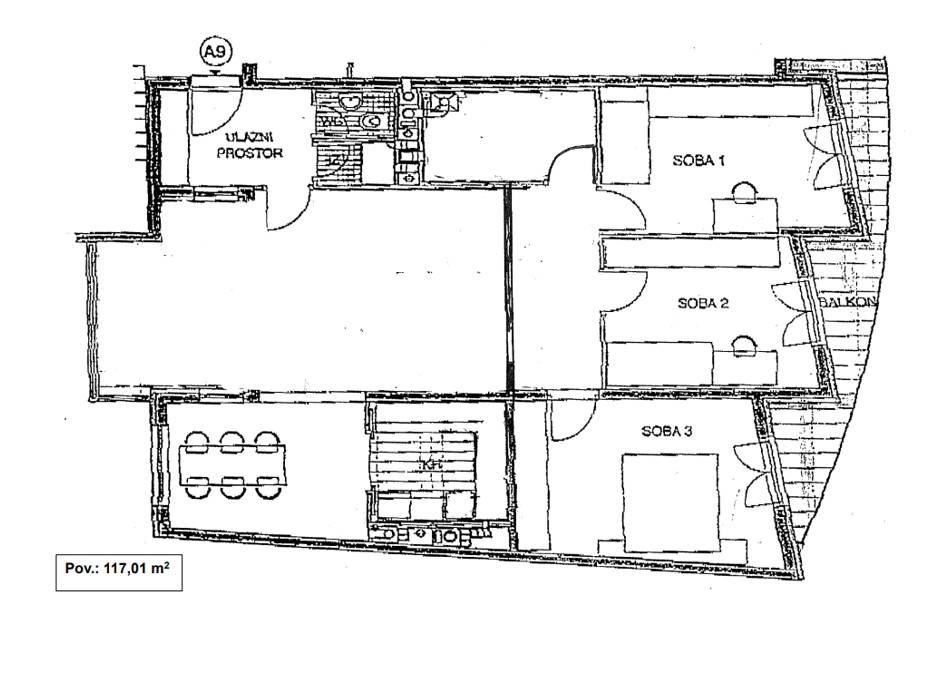
117 m²
1
4
Oui
Balcon

Remarque

Annonce mise à jour le 20/02/2026
Description

référence: EK-2668631

Iznajmljuje se stan površine 117 m² sa spremištem u podrumu te dva garažna parkirna mjesta, na izvrsnoj lokaciji u neposrednoj blizini Doma sportova.
Iznajmljuje se pravnim osobama.

4. kat od ukupno 5 katova

Prostor uključuje: open space prostor od 43,50 m² s ugrađenim pultom/šankom, odvojena prostorija predviđena za kuhinju, 3 zasebne sobe površina 12 m², 13 m² i 14 m² – svaka s vlastitim balkonom, kupaonica s kadom i wc-om, dodatni wc, te prostorija koja može služiti za odlaganje stvari.

Prostor je kompletno renoviran: novolakirani parketi, lakirana unutarnja stolarija i prozori, te svježe okrečeni zidovi.
Nenamješten je i spreman za uređenje prema potrebama najmoprimca.

Prostor se izdaje u najam na minimalno 2 godine.

Za sve informacije molimo kontaktirati:

Futura Premium Estate d.o.o.
www.futura-premium.hr
M: +385 98 800 008 - licencirani agent za posredovanje u prometu nekretnina (upisan u registar HGK)
E: robert@futura-premium.hr

Agencijska provizija naplaćuje se sukladno cjeniku i Općim uvjetima poslovanja
Caractéristiques
Typologie
Appartement | Pleine propriété
Transaction
Location
Étage
4
Étages du bâtiment
5
Ascenseur
Oui
Superficie
117 m²
Chambres/pièces
4
Chambres
3
Cuisine
Cuisine américaine
Bains/douches
1
Meublé
Non
Balcon
Oui
Terrasse
Non
Box, places stationnement
2 dans garage/box, 2 place(s) de parking
Chauffage
Individuel
Détail de la surface

Habitation

Étage
4
Superficie
117,0 m²
Coefficient
100%
Type de superficie
Habitable
Sup. commercial
117,0 m²
Informations sur les prix
Prix
€ 1 950/mois
Prix au m²
17 €/m²
Détails des coûts
Caution
Non indiquée
Efficacité énergétique

Consommation d'énergie

≥ 250 kWh/m² annéeB

Plan
Tlocrt
Découvrez chaque recoin de la propriété
+18
Options additionnelles

Contacter l'annonceur

Ou