Maison individuelle Lozica, Dubrovnik - Okolica, Dubrovnik

€ 3 500 000
4
300 m²
3+
Non
Terrasse

Remarque

Annonce mise à jour le 23/02/2026
Description

This description has been translated automatically and may not be accurate

référence: 15110

A luxury house by the sea is for sale in Lozica, near Dubrovnik. The house is currently under construction, with completion expected in the summer of 2025. The house has a net area of 300 m² and spans 4 floors, featuring an elevator and 2 parking spaces.
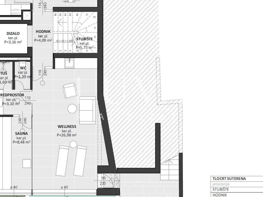
On the first floor, which is significantly elevated above the road, there will be an outdoor pool on the terrace, a wellness room with a sauna and bathroom, a gym, and a laundry room.
The second floor will have a spacious living room, kitchen, dining room, wine room, and a bathroom.
The third floor will include 3 bedrooms, each with its own bathroom and walk-in closet.
The top floor will feature a spacious terrace, a bathroom, and a room that can be used as a bedroom, office, or additional living room.
The interior images are design proposals, and the final decoration will be according to the buyer's preferences.

For any additional questions, please feel free to contact us.

ID CODE: 15110

Ivan Jelaska
Mob: +385 91 288 0082
E-mail: ivan@luvarealestates.com
www.luvarealestates.com
Si vous voulez en savoir plus, vous pouvez parler à Ivan Jelaska.
Caractéristiques
Typologie
Maison individuelle
Transaction
Vente
Ascenseur
Non
Superficie
300 m²
Chambres/pièces
4
Chambres
4
Bains/douches
3+
Balcon
Non
Terrasse
Oui
Informations sur les prix
Prix
€ 3 500 000
Prix au m²
11 667 €/m²
Efficacité énergétique
  • Certification énergétique

    Non classifiable
Découvrez chaque recoin de la propriété
+21
Options additionnelles

Contacter l'annonceur

Ou