map icon

Appartement 3 chambres neuf, rez-de-chaussée, Tribunj

Tribunj
€ 398 008
3
93 m²
2
0

Remarque

Annonce mise à jour le 25/02/2026
Description

This description has been translated automatically and may not be accurate

référence: 3612-1

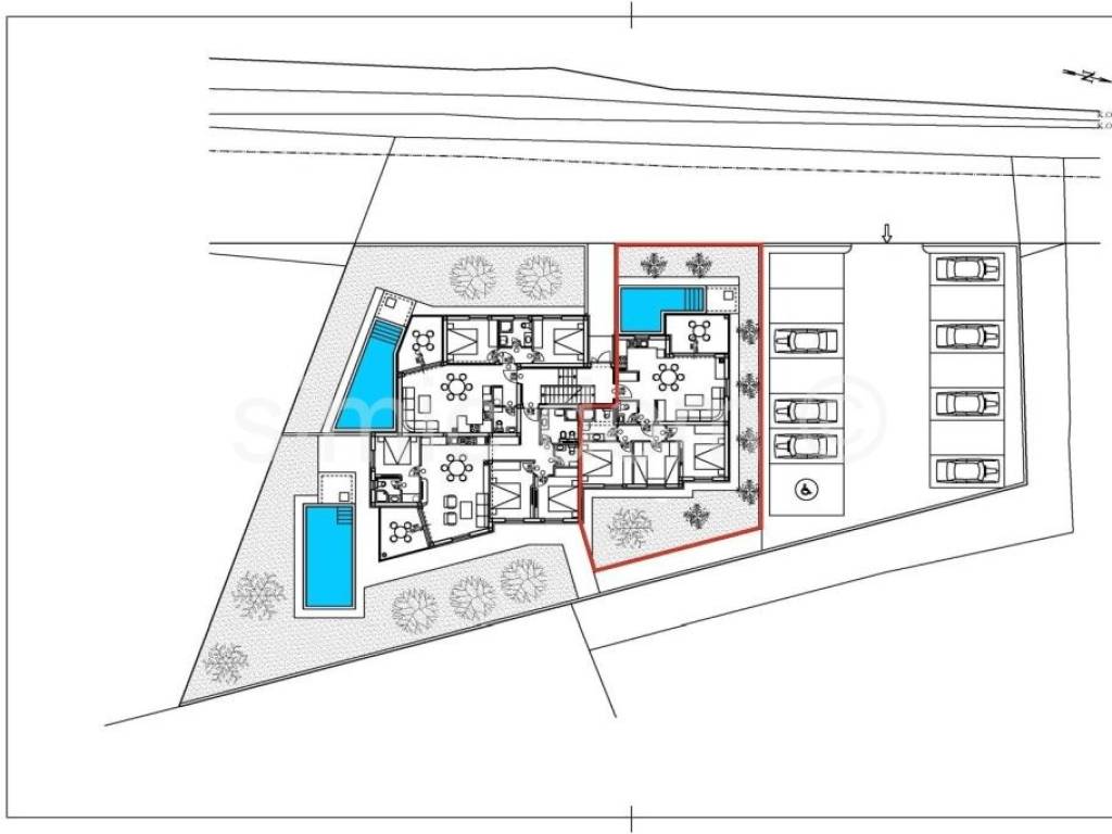
For sale is an apartment located on the ground floor of a new building 650m from the beach in Tribunj. The building is being built by a reputable company with extensive experience in building high-quality buildings. The apartment has 92.56 m of living space, three spacious bedrooms, two bathrooms, a storage room and a kitchen with a dining room and a living room with access to a paved terrace with a private swimming pool and a garden. The price includes 1 parking space and 1 storage room. High-quality equipment includes natural stone floors, aluminum windows with triple glazing and air conditioning in all rooms. Air conditioning in all rooms and underfloor heating ensure a high level of comfort. The expected completion of the works is the end of 2026. The apartment is located in a prime location close to shops, cafes and the beach and represents an excellent investment both in an apartment for living and in a holiday property.

Viewing this property is possible only with the signing of our standard agency agreement, which is the basis for further actions related to the sale of real estate, all in accordance with the Law on Data Protection and the Real Estate Brokerage Act.
Si vous voulez en savoir plus, vous pouvez parler à Marija Paić.
Caractéristiques
Typologie
Appartement
Transaction
Vente
Étage
Rez-de-chaussée
Superficie
93 m²
Chambres/pièces
3
Bains/douches
2
Climatisation
Centralisé, froid/chaud
Autres caractéristiques
  • Piscine
Informations sur les prix
Prix
€ 398 008
Prix au m²
4 280 €/m²
Efficacité énergétique
  • État

    Nouveau / En construction
  • Climatisation

    Centralisé, froid/chaud
  • Certification énergétique

    Non classifiable
Découvrez chaque recoin de la propriété
+4
Options additionnelles

Contacter l'annonceur

Ou