map icon

Terrain constructible en Vente

Nin
€ 278 000
695 m²

Remarque

Annonce mise à jour le 25/02/2026
Description

référence: 760-1

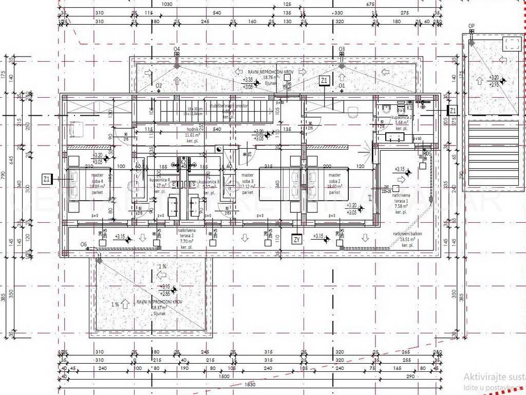
Prodaje se građevinsko zemljište u Zatonu, površine 695 m. Za zemljište je izrađena projektna dokumentacija i ishodovana građevinska dozvola. Projektom je planirana gradnja vile s pomoćnom građevinom (ljetna kuhinja) i bazenom.
Podna stambena površina vile je 266,67 m, dok neto korisna stambena površina iznosi 227,92 m.
U prizemlju bi bili ulazni dio, hodnik, praonica, dnevni boravak s blagovaonom i kuhinjom (52,6 m) te jedna soba s kupaonicom. Na katu su tri prostrane spavaće sobe (12-18 m) s vlastitim kupaonicama (oko 5 m). U dvorištu će biti vanjska kuhinja natkrivena pergolom te komin. Bazen je pravokutnog oblika, površine 42 m.
Na zemljištu će se osigurati dva parkirna mjesta. Priključci struje i vode su u neposrednoj blizini.
Zemljište je smješteno u mirnom dijelu mjesta, u okruženju novoizgrađenih vila. Od mora i plaže udaljeno je oko 1200 m, a od centra mjesta oko 600.
U ponudi je i susjedno zemljište, površine 624 m, po cijeni od 249.600 , također s građevinskom dozvolom.
Zaton je turističko mjesto smješteno između dvaju povijesnih gradova Zadra, od kojeg je udaljen oko 15 km, i Nina, do kojeg je samo 2 km. Predstavlja spoj ugodne mediteranske klime, očuvane prirode, čistog mora, bogate kulturno-povijesne baštine te živahne turističke svakodnevnice. Pješčane i šljunčane plaže u sjeni stoljetnih borova idealne su za obitelji s djecom. U obližnjem Ninu je i plaža s ljekovitim blatom peloidom.
Za razgledavanje molim nazovite 099/325-2763.
Si vous voulez en savoir plus, vous pouvez parler à Emilija Ćelić.
Caractéristiques
Transaction
Vente
Typologie
Terrain constructible
Superficie
695 m²
Informations sur les prix
Prix
€ 278 000
Prix au m²
400 €/m²
Découvrez chaque recoin de la propriété
+8
Options additionnelles

Contacter l'annonceur

Ou