Maison individuelle 82 m², Tinjan

€ 198 000
5
82 m²
2

Remarque

Annonce mise à jour le 13/03/2026
Description

This description has been translated automatically and may not be accurate

référence: 45575

ISTRIA, TINJAN - A detached house with character in the heart of Istria

In a quiet and green settlement in the municipality of Tinjan, this architecturally planned house with character under construction with a building permit obtained and the start of construction registered. This is an exceptional opportunity for buyers who want to finish the house according to their own wishes, but without the risk and long process of obtaining documentation and rough construction work.

Here you are buying a quality construction + a fully designed project that enables a functional and modern way of life. The building is structurally completed and ready for installations and finishing works.

CONSTRUCTION WORKS COMPLETED (the most demanding part is finished)
*Cast reinforced concrete (AB) floor slab
*Concrete interfloor structure constructed
*Concrete stairs installed
*New wooden roof structure
*Roof completely finished with all layers and final covering of Mediterranean tiles
*Built partition wall for the ground floor toilet
*New external openings (4) constructed according to the project
*Old erts installed on the facade, which give the building an authentic Istrian look

The plot already has the following:
-active water connection
-construction electricity connection

This significantly reduces additional costs and speeds up the continuation of construction.

PLANNED ROOM LAYOUT
The layout of the house was designed with an emphasis on the open space concept, comfort and natural light. (possibility of change of future owners)

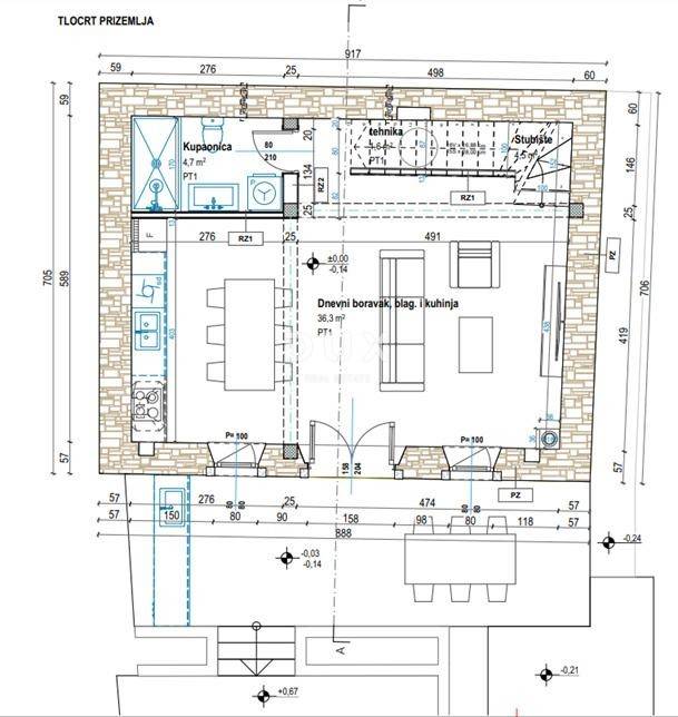
Ground floor
-open space kitchen with dining room and living room, total area 36.3 m
-direct access to the terrace and planned summer kitchen
-bathroom: 4.7 m
-internal staircase leading to the first floor

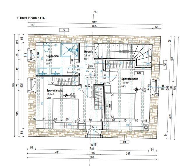
First floor
-hallway: 3.9 m
-spacious bathroom: 6.5 m
-bedroom 1: 15.6 m
-bedroom 2: 14.5 m

Garage and garden

The property is ideal as a family home for a quiet life in Istria, a holiday home with authentic Istrian charm or an investment for tourist rental, extremely sought after in the interior of Istria
Thanks to the already finished construction, the new owner can adjust the finishing materials and style and arrange the garden, terrace and summer kitchen

ADVANTAGES OF THE LOCATION
Located in the green heart of Istria, Tinjan offers what is most valuable today peace, privacy and space. Surrounded by untouched nature, it is known for its superb gastronomy, Istrian prosciutto, local products, agritourism and wine roads that tell the story of the true Mediterranean.
The location is both peaceful and perfectly connected Pazin is within easy reach, and Poreč and the sea are just a short drive away.
Istria is a region with an exceptional quality of life safe, well-maintained and long-term attractive, with continuous demand for real estate and stable investment value.

If you are looking for a solid and secure foundation for your dream home or a smart investment, with the freedom to finish everything to your own taste, call us now because this is an opportunity that has energy, potential and a future.

Dear clients, the agency commission is charged in accordance with the General Terms and Conditions.
www.dux-nekretnine.hr/opci-uvjeti-poslovanja

ID CODE: 45575

DUX Pula
Mob: +385 92 476 5008
Tel: +385 91 480 8808
E-mail: info@dux-istra.com
www.dux-istra.com

Aldin Begić
Agent pripravnik
Mob: +385 95 391 9185
Tel: +385 91 480 8808
E-mail: aldin@dux-istra.com
www.dux-istra.com

Deniro Osmanović
Agent pripravnik
Mob: +385 99 371 3802
Tel: +385 91 480 8808
E-mail: deniro@dux-istra.com
www.dux-istra.com
Caractéristiques
Typologie
Maison individuelle
Transaction
Vente
Étage
1
Superficie
82 m² | commerciale 191 m²
Chambres/pièces
5
Chambres
2
Bains/douches
2
Balcon
Non
Terrasse
Non
Box, places stationnement
1 dans garage/box
Détail de la surface

Habitation

Étage
1
Superficie
82,0 m²
Coefficient
100%
Type de superficie
Habitable
Sup. commercial
82,0 m²

Terrain

Étage
Rez-de-chaussée
Superficie
109,0 m²
Coefficient
100%
Type de superficie
Accessoires
Sup. commercial
109,0 m²
Informations sur les prix
Prix
€ 198 000
Prix au m²
1 037 €/m²
Efficacité énergétique
  • Certification énergétique

    Exempt
Découvrez chaque recoin de la propriété
+8
Options additionnelles

Contacter l'annonceur

Ou