Appartement 3 chambres Okrug Gornji, Okrug

€ 330 000
3
122 m²
0
Terrasse

Remarque

Annonce mise à jour le 03/03/2026
Description

référence: EUROVILLA-215957

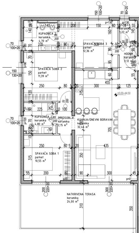
Čiovo, Okrug Gornji, trosoban stan položen u prizemlju modernog objekta u izgradnji.Stan se sastoji od ulaznog hodnika, ostave, tri spavaće sobe, dvije kupaonice, kuhinje s blagovaonicom i dnevnog boravka. Okružen je vrtom površine 273 m2, što budućim vlasnicima obećava potpunu privatnost i prostor koji mogu iskoristiti kao produžetak dnevnog i blagovaonskog dijela. Površina zatvorenog stambenog dijela iznosi 83, 30 m2, a ukupna 122, 60 m2.U cijenu su uračunata i dva vanjska nenatkrivena parkirna mjesta.Objekt je smještan na južnoj strani Čiova, na odličnoj lokaciji, jako blizu uređenih plaža, restorana, trgovina,….Za sva ostala pitanja, stojim na raspolaganju.... Više na eurovilla.hr, ID: 215957
Si vous voulez en savoir plus, vous pouvez parler à Josipa Serdarušić.
Caractéristiques
Typologie
Appartement
Transaction
Vente
Étage
Rez-de-chaussée
Superficie
122 m²
Chambres/pièces
3
Chambres
3
Terrasse
Oui
Détail de la surface

Habitation

Étage
Rez-de-chaussée
Superficie
122,6 m²
Coefficient
100%
Type de superficie
Habitable
Sup. commercial
122,6 m²
Informations sur les prix
Prix
€ 330 000
Prix au m²
2 705 €/m²
Efficacité énergétique
  • État

    Nouveau / En construction
  • Certification énergétique

    Exempt
Plan
Découvrez chaque recoin de la propriété
+11
Options additionnelles

Contacter l'annonceur

Ou