Maison individuelle Miholjice, Malinska

€ 700 000
4
164 m²
Terrasse

Remarque

Annonce mise à jour le 03/03/2026
Description

référence: EUROVILLA-492869

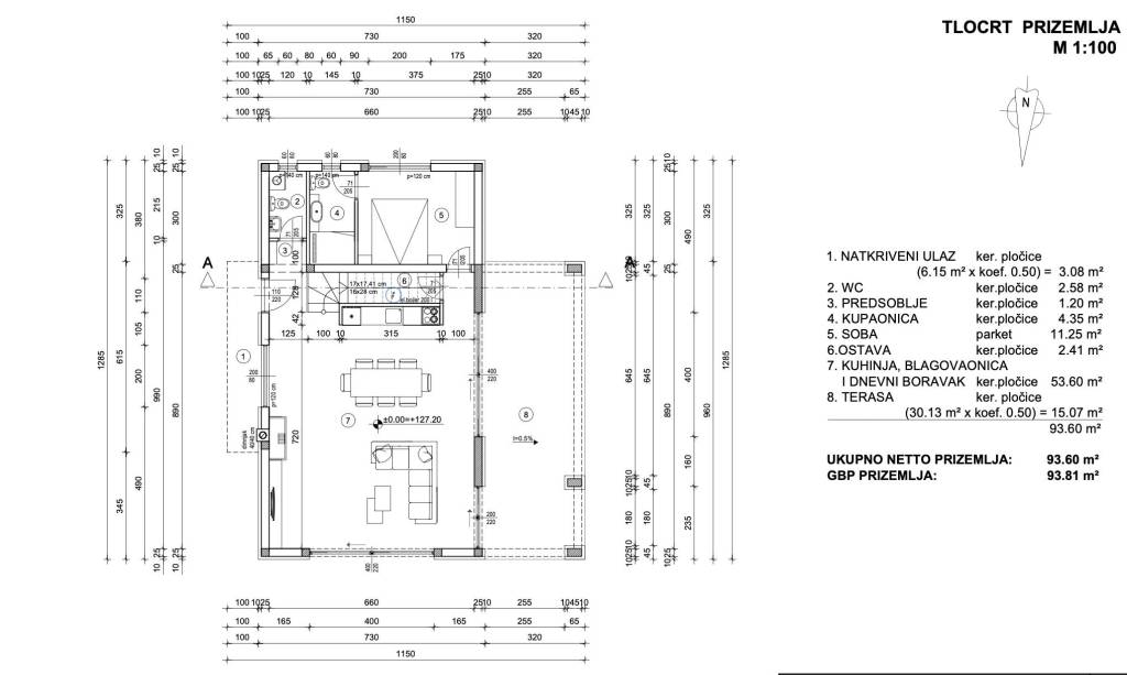
Malinska, Miholjice, obiteljska vila, stambene površine 161,78 m2, s vanjskim bazenom i prekrasnim pogledom na more, smještena u novom naselju luksuznih vila. Udaljena je 900 metara od centra i atraktivnih plaža.U prizemlju se nalazi prostrani dnevni boravak u open space konceptu s natkrivenom terasom, bazenom i vrtom, te spavaća soba s vlastitom kupaonicom i dodatnim zasebnim sanitarnim čvorom.Elegantno unutarnje stubište vodi na kat gdje su smještene tri spavaće sobe, dvije kupaonice i dvije prostrane terase s pogledom na more.U dvorištu se nalazi parking prostor za 3 do 5 automobila, a u tijeku su završni radovi na objektu i uređenju vrta.Ova vila pruža idealan omjer cijene i kvalitete, uz visok standard koji uključuje podno grijanje, električne rolete, komarnike, vrhunske pločice te kvalitetne prozore i stakla.... Više na eurovilla.hr, ID: 492869
Si vous voulez en savoir plus, vous pouvez parler à Borna Radović.
Caractéristiques
Typologie
Maison individuelle
Transaction
Vente
Étage
Rez-de-chaussée
Superficie
164 m²
Chambres/pièces
4
Chambres
4
Terrasse
Oui
Détail de la surface

Habitation

Étage
Rez-de-chaussée
Superficie
164,5 m²
Coefficient
100%
Type de superficie
Habitable
Sup. commercial
164,5 m²
Informations sur les prix
Prix
€ 700 000
Prix au m²
4 268 €/m²
Efficacité énergétique
  • État

    Nouveau / En construction
  • Certification énergétique

    Exempt
Plan
Découvrez chaque recoin de la propriété
+13
Options additionnelles

Contacter l'annonceur

Ou