Appartement 3 chambres Pere Budmanija, Kanal - Sigečica, Zagreb

€ 750 000
3
128 m²
3
Terrasse

Remarque

Annonce mise à jour le 03/03/2026
Description

référence: EUROVILLA-550034

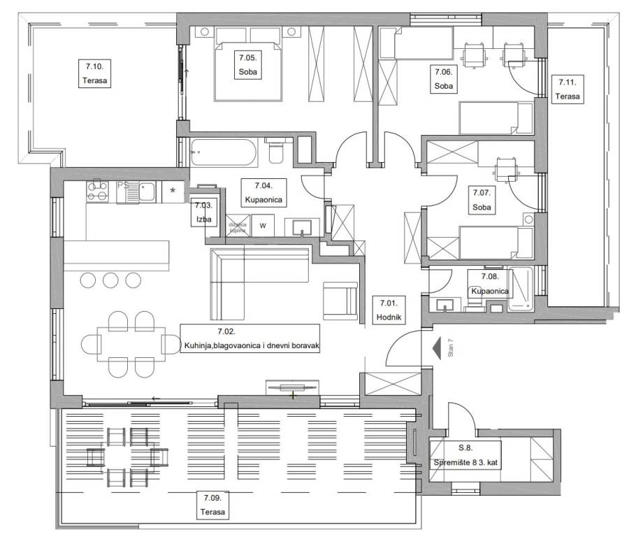
Ulica Pere Budmanija, prekrasan četverosoban penthouse u modernoj i kvalitetnoj novogradnji iz 2024. godine s liftom.Zatvorene površine 96 m2 - s tri terase od 28 m2, 14 m2 i 12 m2, duplom garažom i spremištem. Ukupno neto korisne površine 128 m2.Sastoji se od ulaznog dijela, open space kuhinje s blagovaonom i dnevnim boravkom s izlazom na veliku terasu, odvojennog spavaćeg dijela s tri spavaće sobe i dvije kupaonice, svaka soba s izlazom na terasu.Opremljen podnim grijanjem s dizalicom topline Daikin, Daikin sustav hlađenja, električne rolete...Nalazi se na izvrsnoj lokaciji, u neposrednoj blizini Green gold centra i bussines zone Radnička, javnog prijevoza te svih potrebnih sadržaja za kvalitetan život.Ostale informacije na upit.... Više na eurovilla.hr, ID: 550034
Si vous voulez en savoir plus, vous pouvez parler à Ante Gregović.
Caractéristiques
Typologie
Penthouse
Transaction
Vente
Étage
3
Superficie
128 m²
Chambres/pièces
3
Chambres
3
Terrasse
Oui
Détail de la surface

Habitation

Étage
3
Superficie
128,4 m²
Coefficient
100%
Type de superficie
Habitable
Sup. commercial
128,4 m²
Informations sur les prix
Prix
€ 750 000
Prix au m²
5 859 €/m²
Plan
Découvrez chaque recoin de la propriété
+10
Options additionnelles

Contacter l'annonceur

Ou