Appartement 2 chambres Umag, Centar, Luka, Finida, Umag

€ 563 479
2
212 m²
3
Balcon
Terrasse

Remarque

Annonce mise à jour le 03/03/2026
Description

référence: EUROVILLA-859855

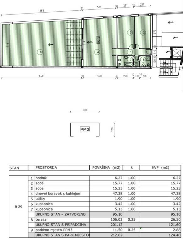
Projekt se nalazi u Umagu tik uz more i pruža prvoklasan pristup moru i plaži. Prekrasno apartmansko naselje, koje se sastoji od 4 zgrade, nalazi se u neposrednoj blizini mora, šetnica i nudi prvoklasne poglede koji omogućuju pravi odmor na moru.Stanu B29 pripadaju: dnevni boravak s kuhinjom iz kojih se izlazi na veliku terasu od 106,02 m2, dvije spavaće sobe, dvije kupaonice, hodnik i ostava od 1,90 m2. Ukupna neto površina stana zajedno s parkirnim mjestom je od 212,62 m2, a površina zatvorenog prostora je 95,10 m2.Stan ima pogled na more, te je u prizemlju bazen koji je namijenjen za korištenje vlasnicima apartmana. Apartman se prodaje kompletno opremljen namještajem, bijelom tehnikom, kupaonskom opremom te je odmah useljiv. U svakoj prostoriji nalaze se klima uređaji za grijanje i hlađenje, WiFi, pametni televizori.Stanu pripada jedno garažno parkirno mjesto i jedno valjsko parkirno mjesto.Lokacija projekta pruža izvrsnu polaznu točku kako za pristup moru i plaži, tako i za pristup svoj potrebnoj infrastrukturi. Neposredna okolina pogodna je i za biciklizam. Plaža Dante, glavna plaža u Umagu, plaža Laguna Stella Maris i druga popularna turistička mjesta nalaze se u blizini.Za više informacija stojim na raspolaganju.... Više na eurovilla.hr, ID: 859855
Si vous voulez en savoir plus, vous pouvez parler à Sanda Poropat.
Caractéristiques
Typologie
Penthouse
Transaction
Vente
Étage
3
Superficie
212 m²
Chambres/pièces
2
Chambres
2
Balcon
Oui
Terrasse
Oui
Détail de la surface

Habitation

Étage
3
Superficie
212,6 m²
Coefficient
100%
Type de superficie
Habitable
Sup. commercial
212,6 m²
Informations sur les prix
Prix
€ 563 479
Prix au m²
2 658 €/m²
Plan
Découvrez chaque recoin de la propriété
+29
Options additionnelles

Contacter l'annonceur

Ou