Appartement 2 chambres Ivanečka, Knežija - Srednjaci, Zagreb

€ 311 630
2
68 m²
6
Balcon

Remarque

Annonce mise à jour le 03/03/2026
Description

référence: EUROVILLA-923009

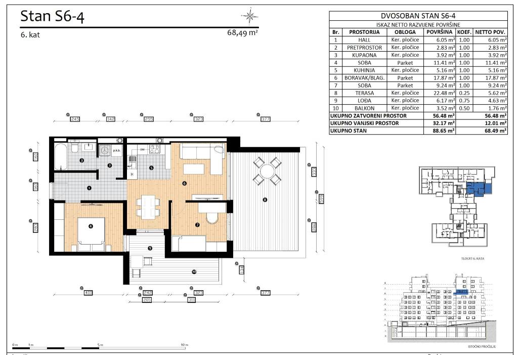
HERITAGE - Nova era stanovanja na TrešnjevciTrešnjevka, na atraktivnoj lokaciji gradi se HERITAGE, zgrada s ukupno 110 stanova. Savršen spoj udobnosti i luksuza dostupan svima. Planirano useljenje veljača- 2027.Stan trosoban stan na šestom katu zatvorene površine 56,48 m2 s terasom 22,48 m2 (5,62) ukupno obračunski 68,49 m2.Sastoji se od ulaznog hodnika, jedne kupaonice i vešeraja, dnevnog boravka spojenog s blagovaonicom i kuhinjom, balkona i lođe, roditeljske spavaće sobe i jednom dječjom spavaćom sobom.Obavezna kupnja parkirnog garažnog mjesta i mogućnost kupnje spremišta.Zgrada će biti izgrađena po visokim standardima:sustav ETICS, završni sloj silikatna žbuka proizvođača ROFIXtoplinska izolacija 15 cm mineralna vuna Rockwoolaluminijske vanjske klupčice u boji stolarijevanjska stolarija PVC s trostrukim IZO staklomtoplinski izolirane aluminijske električne roletekomarnicidizalo KONE za 13 osoba,moderna i luksuzna kabinavideonadzor ulaza u zgradu i garažuunutarnja stolarija visina 220 cm, skriveni panti, magnetska bravaulazna vrata protuprovalna i protudimna, zvučno izoliranapodovi sanitarne prostorije, loggie i kuhinje obloženo keramičkim pločicama I klase, podovi svih ostalih prostorija obloženi sa gotovim višeslojnim hrastovim parketom proizvođača Moparsva sanitarna oprema je visoke kvalitete poznatih svjetskih proizvođača (HANSGROHE, LAUFEN, IDEAL STANDARD)ugradbeni TECE vodokotlićigrijanje i priprema potrošne tople vode preko Vaillant ili Bosch kondenzacijskog plinskog bojlerapodno grijanje svih prostorijatermostati podnog grijanja u svim prostorijamainverter klima uređaj Samsung i ToshibaLokacija u blizini škole, vrtića...Za sve ostale informacije budite slobodni kontaktirati.... Više na eurovilla.hr, ID: 923009
Si vous voulez en savoir plus, vous pouvez parler à Nenad Tatarinov.
Caractéristiques
Typologie
Appartement
Transaction
Vente
Étage
6
Superficie
68 m²
Chambres/pièces
2
Chambres
2
Balcon
Oui
Détail de la surface

Habitation

Étage
6
Superficie
68,5 m²
Coefficient
100%
Type de superficie
Habitable
Sup. commercial
68,5 m²
Informations sur les prix
Prix
€ 311 630
Prix au m²
4 583 €/m²
Efficacité énergétique
  • État

    Nouveau / En construction
  • Certification énergétique

    Exempt
Plan
Découvrez chaque recoin de la propriété
+15
Options additionnelles

Contacter l'annonceur

Ou