Appartement 1 chambre Centar, Velika Gorica

€ 148 274
1
43 m²
1

Remarque

Annonce mise à jour le 03/03/2026
Description

référence: EUROVILLA-973631

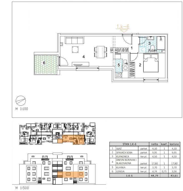
Dvosoban stan površine 43,61 m2 smješten na 1. katu.Stan 1K-6 sastoji se od ulaza, spavaće sobe, kupaonice, dnevnog boravka, kuhinje s blagovaonicom te loggije.Projekt moderne stambene gradnje koji obuhvaća 22 stambene jedinice raspoređene u funkcionalno organiziranoj građevini, uz 36 garažnih mjesta u podzemnoj etaži i dodatnih 8 vanjskih parkirnih mjesta na razini terena. Kolni i pješački pristup omogućen je izravno s javne prometne površine na južnoj strani parcele, a promet u mirovanju riješen je u skladu s važećim urbanističkim planom, čime je osigurana jednostavna dostupnost i kvalitetna organizacija prostora.Uz kupnju stana obavezna je kupnja garažnog parkirnog mjesta te vanjskog parkirnog mjesta.Građevina je projektirana kao armiranobetonska konstrukcija, s nosivim zidovima i gredama međusobno povezanim u cjelovit sustav te punim armiranobetonskim stropnim i ravnim krovnim pločama. Vertikalne elemente čine armiranobetonski zidovi debljine 20 cm kroz sve etaže, dok horizontalni sustav čine armiranobetonske ploče iste debljine. Takav konstruktivni koncept osigurava stabilnost, trajnost i sigurnost objekta.Pročelje će biti izvedeno u ETICS sustavu s toplinskom izolacijom od EPS-a i mineralne vune debljine 15 cm, ovisno o poziciji i zahtjevima zaštite od požara, uz završnu obradu u boji i teksturi prema projektu. Vanjska stolarija predviđena je kao PVC, uz električno upravljane rolete, čime se dodatno doprinosi energetskoj učinkovitosti i komforu stanovanja. Ravni krov projektiran je kao neprohodan, s tehničkim slojevima definiranim elaboratom fizike zgrade.Unutarnji prostori osmišljeni su s naglaskom na funkcionalnost i dugotrajnost materijala. Sustav grijanja izveden je kao plinsko etažno podno grijanje, koje omogućuje ravnomjernu raspodjelu topline i optimalnu iskoristivost prostora bez radijatora. Za hlađenje su predviđeni klima uređaji proizvođača Bosch.Podovi se izvode kao plivajući sustav s toplinskom i zvučnom izolacijom te cementnim estrihom. U dnevnim boravcima, blagovaonicama, hodnicima i spavaćim sobama predviđen je troslojni hrastov parket, dok su u sanitarnim prostorima, kuhinjama i na vanjskim površinama planirane keramičke pločice. Kupcima će biti ponuđene tri varijante keramike u vrijednosti do 35 EUR/m², a sav dodatni odabir i eventualne izmjene moguće su putem tvrtke F.I.C. d.o.o., koja osigurava salonski odabir materijala i ugradnju.Unutarnja sobna vrata predviđena su od proizvođača RV Križevci, dok su ulazna vrata u stanove protuprovalna vrata proizvođača Kolnoa, opremljena sustavom zaključavanja Mul-T-Lock, čime je osigurana viša razina sigurnosti.Ovaj projekt u Velikoj Gorici predstavlja priliku za kupnju stana u novogradnji koja objedinjuje provjerenu konstrukcijsku kvalitetu, suvremene sustave grijanja i hlađenja te mogućnost prilagodbe završnih materijala prema željama kupca, u urbanoj zoni s dobrom prometnom povezanošću i razvijenom infrastrukturom.Useljenje: 05/2027... Više na eurovilla.hr, ID: 973631
Si vous voulez en savoir plus, vous pouvez parler à Sarah Ivanković.
Caractéristiques
Typologie
Appartement
Transaction
Vente
Étage
1
Superficie
43 m²
Chambres/pièces
1
Chambres
1
Détail de la surface

Habitation

Étage
1
Superficie
43,6 m²
Coefficient
100%
Type de superficie
Habitable
Sup. commercial
43,6 m²
Informations sur les prix
Prix
€ 148 274
Prix au m²
3 448 €/m²
Efficacité énergétique
  • État

    Nouveau / En construction
  • Certification énergétique

    Exempt
Plan
Découvrez chaque recoin de la propriété
+7
Options additionnelles

Contacter l'annonceur

Ou