Appartement 2 chambres Centar, Velika Gorica

€ 188 258
2
55 m²
3
Balcon

Remarque

Annonce mise à jour le 04/03/2026
Description

référence: EUROVILLA-447482

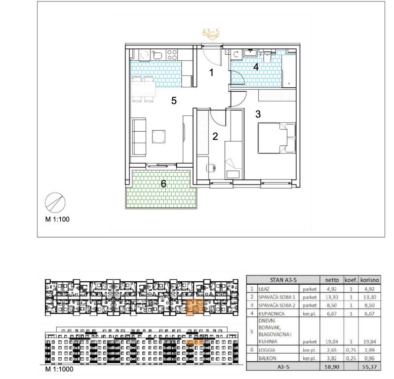
Trosoban stan površine 55,37 m2 smješten na 3. katu.Stan A3-5 sastoji se od ulaza, 2 spavaće sobe, kupaonice, dnevnog boravka, kuhinje s blagovaonicom, loggije te balkona.Velika Gorica, projekt stambene novogradnje namijenjen stalnom stanovanju, koji obuhvaća 91 stambenu jedinicu. U sklopu zgrade osigurano je ukupno 182 garažnih i parkirnih mjesta, od čega je 28 garažnih mjesta smješteno u prizemlju, 97 garažnih i parkirnih mjesta u podzemnoj etaži te dodatnih 57 parkirnih mjesta na razini terena.Uz kupnju stana obavezna je kupnja garažnog mjesta na -1 etaži po cijeni od 25.000,00 EUR ili garažnog mjesta na 0 etaži po cijeni od 30.000,00 EUR zajedno s parkirnim garažnim mjestom po cijeni od 18.000,00 EUR ili vanjskim parkirnim mjestom po cijeni od 10.000,00 EUR. Dakle, garažno mjesto na -1 etaži ili garažno mjesto na 0 etaži + garažno parkirno mjesto ili vanjsko parkirno mjesto.Građevina je projektirana kao armiranobetonska konstrukcija, međusobno povezana zidovima i gredama, s punim armiranobetonskim stropnim pločama i ravnim krovom. Vertikalni konstruktivni sustav čine armiranobetonski zidovi debljine 20 cm izvedeni kroz sve etaže, dok horizontalni sustav čine armiranobetonske ploče debljine 20 cm.Pročelje je predviđeno s toplinskom izolacijom debljine 15 cm u ETICS sustavu, izvedenom od EPS-a, a u zonama požarnih prekida, u kontaktu sa stubištem i na podgledu prizemlja od mineralne vune iste debljine. Završna obrada izvodi se armiranom mrežicom, gletanjem i završnim slojem u boji i teksturi prema projektu. Vanjska stolarija predviđena je kao PVC, u tonu definiranom projektom.Krov je projektiran kao ravni neprohodni krov, a svi slojevi izvedeni su u skladu s projektom fizike zgrade. Unutarnji pregradni zidovi izvode se kao gipskartonski, debljine 10 do 20 cm, ovisno o namjeni prostora, uz primjenu potrebne zvučne izolacije gdje je to predviđeno. Zidne površine su završno obrađene soboslikarskim radovima u boji prema projektu.Podovi u stanovima izvode se kao plivajući sustav s toplinskom izolacijom od polistirena i cementnim estrihom. Završne podne obloge predviđene su prema namjeni prostora: keramika u sanitarijama, kuhinjama i na vanjskim površinama, a troslojni hrastov parket u dnevnim boravcima, blagovaonicama, ulaznim prostorima i spavaćim sobama. U ponudi su tri varijante keramičkih pločica.Grijanje je riješeno plinskim etažnim podnim sustavom. Stanovi su opremljeni klima uređajima marke Bosch, PVC stolarijom s električnim roletama, troslojnim hrastovim parketom te sobnim vratima proizvođača RV Križevci. Ulazna vrata u stanove su protuprovalna, proizvođača Kolnoa sa sustavom zaključavanja Multilock.Useljenje 05/27Za sva pitanja Vam stojimo na raspolaganju.... Više na eurovilla.hr, ID: 447482
Si vous voulez en savoir plus, vous pouvez parler à Stipe Ćelić.
Caractéristiques
Typologie
Appartement
Transaction
Vente
Étage
3
Superficie
55 m²
Chambres/pièces
2
Chambres
2
Balcon
Oui
Détail de la surface

Habitation

Étage
3
Superficie
55,4 m²
Coefficient
100%
Type de superficie
Habitable
Sup. commercial
55,4 m²
Informations sur les prix
Prix
€ 188 258
Prix au m²
3 423 €/m²
Efficacité énergétique
  • État

    Nouveau / En construction
  • Certification énergétique

    Exempt
Plan
Découvrez chaque recoin de la propriété
+3
Options additionnelles

Contacter l'annonceur

Ou