Appartement 2 chambres neuf, Vodice

€ 319 000
2
81 m²
1
Non
Terrasse

Remarque

Annonce mise à jour le 10/04/2026
Description

This description has been translated automatically and may not be accurate

référence: S579

Appartement 3 pièces S2, construction neuve, à 50 m de la mer et de la plage, Vodice, Lungomare

Nous vendons des appartements de 77 m2 à 107,5 m2 dans un nouveau projet résidentiel de 9 appartements / studios situé dans un excellent emplacement à Vodice - à 50 m de la mer et des plages, ainsi qu’à côté de la promenade Lungomare longue de 7 km qui relie Srima, Vodice, Tribunj et Sovlje, tandis que le centre même de Vodice est à 300 m de distance. Les appartements comprennent des terrasses / balcons / loggias attenants offrant une vue magnifique sur la mer. Tous les appartements sont vendus avec des places de parking incluses dans le prix demandé, et certains appartements disposent également d’un morceau de cour / jardin.

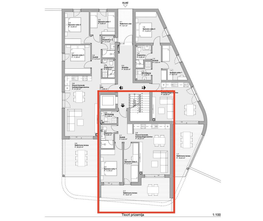
L’appartement S2 s’étend sur 59,74 m2 de surface habitable intérieure et se trouve au rez-de-chaussée d’un immeuble résidentiel avec ascenseur. Il est orienté plein sud. Il se compose de 2 chambres à coucher, d’un séjour ouvert avec cuisine et salle à manger, d’une salle de bain avec WC, d’un WC supplémentaire et d’une buanderie, d’un hall d’entrée, ainsi que d’une terrasse couverte d’une surface au sol de 21,47 m2. L’appartement dispose également d’une place de parking extérieure. La surface totale calculée / surface de vente de l’appartement est de 81,21 m2.

L’immeuble est en phase finale de construction. La fin des travaux et la remise des clés sont prévues pour juin 2026. Les appartements seront climatisés de manière à ce que chaque pièce dispose de son propre climatiseur, le chauffage au sol sera installé dans le séjour avec cuisine, ainsi que dans la salle de bain où seront installés des sanitaires Hans Grohe, une céramique de haute qualité et un chauffe-eau central de 80L. Les menuiseries extérieures seront en PVC avec moustiquaires et volets roulants électriques. Porte anti-effraction.

Emplacement de premier ordre, à 50 m de la plage, de la promenade Lungomare, c’est-à-dire à 300 m du centre de Vodice, du centre de santé, de la pharmacie, du marché, des commerces et autres commodités importantes.

L’ACHETEUR EST EXONÉRÉ DU PAIEMENT DE LA TAXE DE 3 % SUR LES TRANSACTIONS IMMOBILIÈRES ! La commission d’agence pour l’acheteur est de 2 % du prix d’achat, incluant la préparation du contrat préliminaire, du contrat de vente, l’enregistrement du droit de propriété ainsi que le transfert des charges liées aux services publics.



Unités résidentielles restantes disponibles dans le projet :

https://www.njuskalo.hr/nekretnine/projekt-vodice-oglas-46830521


Pour toute autre demande, n’hésitez pas à nous contacter en toute confiance ! Merci d’appeler pendant les heures d’ouverture : lundi - vendredi de 9h00 à 18h00



L'ACHETEUR EST EXONÉRÉ DU PAIEMENT DE LA TAXE DE 3 % SUR LA TRANSACTION IMMOBILIÈRE ! La commission d'agence pour l'acheteur s'élève à 2 % du prix d'achat, incluant la rédaction du compromis de vente, du contrat de vente, l'enregistrement du droit de propriété ainsi que le transfert des charges accessoires.



Unités résidentielles restantes disponibles dans le projet :

https://www.njuskalo.hr/nekretnine/projekt-vodice-oglas-46830521


Pour toute autre demande, contactez-nous en toute confiance ! Merci d'appeler pendant les heures d'ouverture : lundi - vendredi de 9h00 à 18h00



SERVICES COMPLÉMENTAIRES :



**INTERMÉDIATION DE CRÉDIT :**

Nous offrons à tous nos acheteurs une intermédiation de crédit GRATUITE. Hermes partenaire compare pour vous les offres de plusieurs banques en un seul endroit et vous fournit une POLICE D’ASSURANCE GRATUITE que vous obtenez exclusivement en vous inscrivant via le lien https://krediti.kompare.hr/krediti/kreditni-upitnik/hermes Il vous suffit d’entrer vos données et nos collègues vous contacteront dans les plus brefs délais pour vous informer des étapes suivantes !



**RÉNOVATIONS IMMOBILIÈRES**

En collaboration avec un entrepreneur de confiance, nous vous proposons des services de rénovation partielle ou complète de votre bien immobilier. Contactez-nous en toute confiance pour plus d’informations, et nous vous convaincrons que la rénovation ne doit plus être aussi contraignante !



**SERVICES D’ARCHITECTURE**

Nous vous proposons les services d’architectes de confiance !



**CERTIFICATION ÉNERGÉTIQUE RAPIDE**

Nous vous proposons une réalisation rapide des certificats énergétiques par Hermes partenaire – des certificateurs énergétiques agréés !
Caractéristiques
Typologie
Appartement | Classe propriété moyenne gamme
Transaction
Vente
Étages du bâtiment
2
Ascenseur
Non
Superficie
81 m²
Chambres/pièces
2
Chambres
2
Bains/douches
1
Balcon
Non
Terrasse
Oui
Chauffage
Collectif, avec radiateurs
Climatisation
Autonome
Vue
Mer
Distance de la mer
50 m
Autres caractéristiques
  • Jardin privé et collectif
  • Porte blindée
Informations sur les prix
Prix
€ 319 000
Prix au m²
3 938 €/m²
Efficacité énergétique
  • Année de construction

    2026
  • État

    Nouveau / En construction
  • Chauffage

    Collectif, avec radiateurs
  • Climatisation

    Autonome
Plan
Découvrez chaque recoin de la propriété
+17
Options additionnelles

Contacter l'annonceur

Ou