Appartement 3 chambres bana Josipa Jelačića, Samobor

€ 295 920
3
82 m²
2
Balcon

Remarque

Annonce mise à jour le 10/03/2026
Description

référence: EUROVILLA-755555

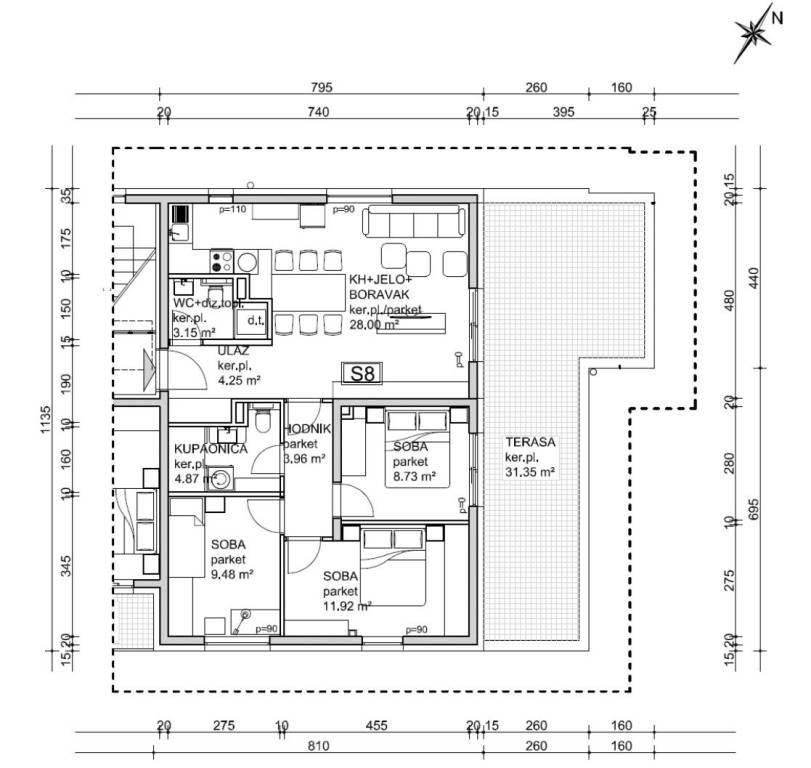
Ovaj projekt predstavlja spoj estetike i funkcionalnosti, pružajući Vam ne samo dom, već i način života koji je u potpunosti prilagođen suvremenim potrebama. Obuhvaća 9 stambenih jedinica čije površine variraju od 45 m2 do 100 m2, svaka s osiguranim garažnim i vanjskim parkirnim mjestima te spremištima. Objekt se prostire na 3 etaže uz podzemnu razinu gdje se nalaze garažna parkirna mjesta i spremišta.STAN S8 - 82,20m2 - ulaznog dijela, gostinjskog toaleta, open space kuhinje s blagovaonom i dnevnim boravkom s izlazom na terasu, odvojenog spavaćeg dijela s tri spavaće sobe od kojih jedna ima izlaz na terasu te kupaonice.Stanu dodatno pripada vanjsko i garažno parkirno mjesto i spremište te se dodatno naplaćuje.S obzirom na izraženu estetiku, elegantnu PVC stolariju renomiranog proizvođača Marlex d.o.o. te protuprovalna/protupožarna vrata razine EI30 od strane Kolnoa d.o.o., vaš dom će biti oaza sigurnosti i udobnosti. Podovi su obloženi parketom 1. klase i keramičkim pločicama vrhunskog proizvođača, dok su zidovi sanitarija obloženi keramikom od strane talijanskog proizvođača, stvarajući estetski dojam koji će Vas oduševiti.Ulaskom u ovaj kompleks, ulazite u suvremeni svijet tehnologije i praktičnosti. Svi stanovi su opremljeni dizalicama topline za dodatnu energetsku efikasnost. Optika u zgradi omogućava brzu i stabilnu internet vezu. Sve ovo čini savršeni dom za suvremenu obitelj.Smješten na samom ulazu u Samobor na mirnoj lokaciji u Ulici bana Josipa Jelačića, samo pet minuta od centra grada Samobora i pet minuta od izlaza Bobovica.Ostale informacije na upit.... Više na eurovilla.hr, ID: 755555
Si vous voulez en savoir plus, vous pouvez parler à Ante Gregović.
Caractéristiques
Typologie
Appartement
Transaction
Vente
Étage
2
Superficie
82 m²
Chambres/pièces
3
Chambres
3
Balcon
Oui
Détail de la surface

Habitation

Étage
2
Superficie
82,2 m²
Coefficient
100%
Type de superficie
Habitable
Sup. commercial
82,2 m²
Informations sur les prix
Prix
€ 295 920
Prix au m²
3 609 €/m²
Efficacité énergétique
  • État

    Nouveau / En construction
  • Certification énergétique

    Exempt
Plan
Découvrez chaque recoin de la propriété
+2
Options additionnelles

Contacter l'annonceur

Ou