Terrain constructible en Vente

€ 1
956 m²

Remarque

Annonce mise à jour le 01/04/2026
Description

référence: 45978

ISTRA, POREČ - Zemljište s građevinskom dozvolom

Okupan ugodnom mediteranskom klimom, smješten u srcu zapadne istarske obale, antički gradić Poreč i njegovo priobalje sačuvanih prirodnih ljepota, uređenih parkova, borovih i hrastovih šumaraka koji sežu do samoga mora, duž kojeg se izmjenjuju čisto more, plaže, zaljevi i otoci rasprostire se na području od 139 km a sastoji se od 58 naselja. S identitetom urbanog primorskog grada, Poreč je grad kulture, sporta, zabave, grad turizma i istinske gostoljubivost. Jedan od najatraktivnijih gradova hrvatskog turizma koji na jedinstven način spaja prirodne ljepote Istre, bogato kulturno-povijesno naslijeđe i najmodernjie pogodnosti vrhunske turističke destinacije. Sklad starogradske jezgre koja je spomenik kulture s jednim od najpoznatijih istarskih kulturnih spomenika, Eufrazijevom bazilikom koja se nalazi na UNESCO-voj listi svjetske baštine i najuređenijih i najbolje opremljenih turističkih naselja na Jadranu formira mozaik nezaboravnih iskustava.
Poreč je i grad koji je mnogo više od ljetne destinacije sunca i mora. Poreč je grad po mjeri čovjeka. Grad u kojem postoji stalni impuls da uvjeti života budu bolji, a napredak u raznim sferama veći. Grad koji je ugodno, sigurno i kvalitetno uređeno mjesto za život gdje svatko može pronaći svoje mjesto, grad bez prireza s visokom socijalnom osjetljivošću za sve generacije.

Nedaleko grada Poreča, na prodaju je zemljište s građevinskom dozvolom.
Nalazi se u pitomom susjedstvu, okruženo prirodom, obiteljskim kućama i kućama za odmor nudeći pritom savršenu ravnotežu ruralnog okruženja i blizinu mora i urbanih sadržaja grada Poreča.
Katastarska čestica je pravokutnog oblika, teren je u blagom padu i čist a elektroenergetska, elektronička komunikacijska i vodovodna infrastruktura nalazi se uz zemljište.
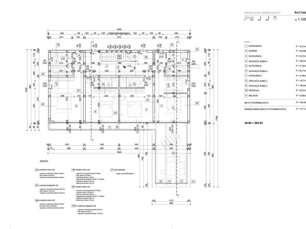
Zemljište ima pravomoćnu građevinsku dozvolu za izgradnju građevine stambene namjene mediteranske elegancije koja se svojim izgledom i stilom uklopa u postojeći ambijent i krajolik i bazena.
Projektirana je kao komforna samostojeća kuća s jednom stambenom jedinicom koja se proteže kroz dvije etaže te će se s kata buduće građevine pružati pogled na okolicu pa sve do mora.
Plaćeni su svi komunalni doprinosi a gradnja je prijavljena i započeta; izgrađena je temeljna ploča.

Zbog svoje mikrolokacije, konfiguracije, urednog vlasništva i dokumentacije ovo zemljište pruža izuzetnu priliku za gradnju obiteljskog doma ili kuće za odmor.

Poštovani klijenti, agencijska provizija naplaćuje se u skladu s Općim uvjetima poslovanja:
www.dux-nekretnine.hr/opci-uvjeti-poslovanja

ID KOD AGENCIJE: 45978

Iva Zajc
Agent s licencom
Mob: +385 92 235 9472
Tel: +385 91 480 8808
E-mail: iva@dux-istra.com
www.dux-istra.com

Tina Širol
Agent s licencom
Mob: +385 95 825 4533
Tel: +385 91 480 8808
E-mail: tina@dux-istra.com
www.dux-istra.com
Si vous voulez en savoir plus, vous pouvez parler à Iva Zajc.
Caractéristiques
Transaction
Vente
Typologie
Terrain constructible
Superficie
956 m²
Informations sur les prix
Prix
€ 1
Prix au m²
0 €/m²
Découvrez chaque recoin de la propriété
+9
Options additionnelles

Contacter l'annonceur

Ou