Maison individuelle 150 m², neuve, Žminj

€ 575 000
4
150 m²
3
Terrasse

Remarque

Annonce mise à jour le 13/03/2026
Description

This description has been translated automatically and may not be accurate

référence: 45972

ISTRIA, ŽMINJ - Modern Istrian house with swimming pool

If all roads in Europe lead to Rome, then all roads in Istria lead to Žminj - the heart of Istria at an altitude of 379 meters. Since ancient times, Žminj has been an important traffic hub. It connected the entire Istrian peninsula. Due to its exceptional natural beauty, endless meadows, vineyards, rich fields, ancient forests and newly discovered caves, it is the right place to get in touch with nature. Green, healthy and sustainable tourism is characteristic of this municipality, which is impressive in terms of area, culture and gastronomy.
The picturesque territory of Žminj has 33 settlements and 112 villages.

Not far from the town of Žminj, a modern Istrian house with a swimming pool is for sale.
The microlocation offers an authentic experience of a small Istrian town, intimacy, relief from every hectic effort and at the same time the proximity of dynamic Istrian cities with a range of facilities.
In addition to its convenient location, the property is also characterized by the quality of construction, which guarantees long-term satisfaction and quality of living.
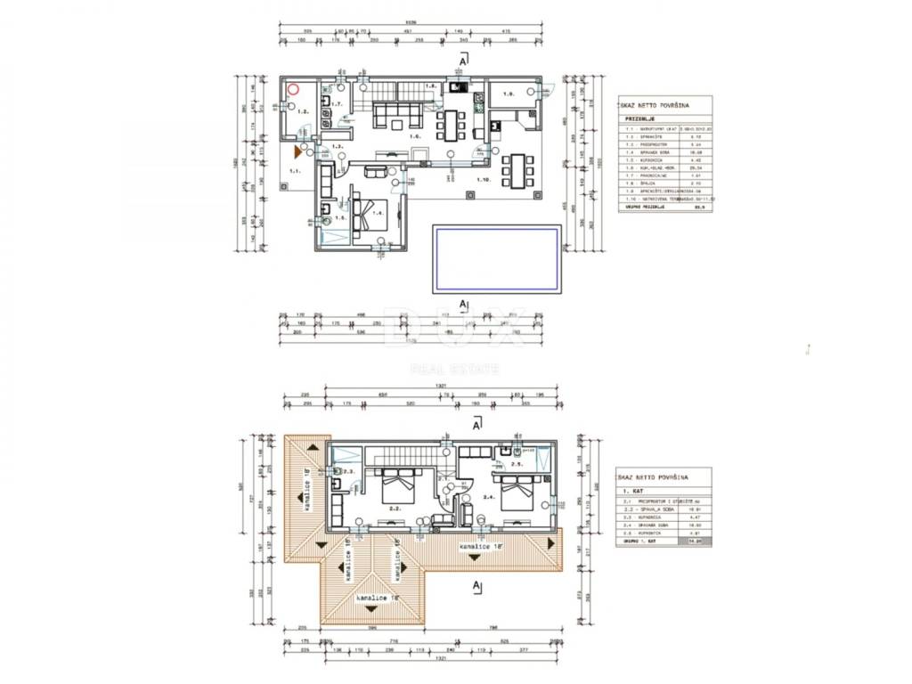
The house of timeless design, partially clad in stone, blends into the settlement and landscape in terms of form and color, and is designed as a single residential unit that extends over two floors of a functional floor plan.
The ground floor consists of an open-concept space that unites the kitchen, dining room and living room with access to a covered terrace that contains a summer kitchen, bedrooms with private bathrooms, a guest toilet with laundry, a utility room, storage and technical rooms, while the first floor consists of two bedrooms with private bathrooms.
The yard is ambientally and horticulturally decorated and fenced and contains a swimming pool with a stone-clad sunbathing area.

The excellent location and spatial organization of the interior and exterior of this property provide an opportunity for comfortable family life or investment in a tourist rental business.

The stated price of the property refers to the final level of completion without furniture, which allows for final decoration according to your own wishes and preferences.

Dear clients, the agency commission is charged in accordance with the General Terms and Conditions:
www.dux-nekretnine.hr/opci-uvjeti-poslovanja

ID CODE: 45972

Iva Zajc
Agent s licencom
Mob: +385 92 235 9472
Tel: +385 91 480 8808
E-mail: iva@dux-istra.com
www.dux-istra.com
Si vous voulez en savoir plus, vous pouvez parler à Iva Zajc.
Caractéristiques
Typologie
Maison individuelle
Transaction
Vente
Étage
1
Superficie
150 m² | commerciale 818 m²
Chambres/pièces
4
Chambres
3
Bains/douches
3
Balcon
Non
Terrasse
Oui
Climatisation
Autonome, froid/chaud
Autres caractéristiques
  • Piscine
Détail de la surface

Habitation

Étage
1
Superficie
150,0 m²
Coefficient
100%
Type de superficie
Habitable
Sup. commercial
150,0 m²

Terrain

Étage
Rez-de-chaussée
Superficie
668,0 m²
Coefficient
100%
Type de superficie
Accessoires
Sup. commercial
668,0 m²
Informations sur les prix
Prix
€ 575 000
Prix au m²
703 €/m²
Efficacité énergétique
  • Année de construction

    2027
  • État

    Nouveau / En construction
  • Climatisation

    Autonome, froid/chaud
  • Certification énergétique

    Exempt
Découvrez chaque recoin de la propriété
+5
Options additionnelles

Contacter l'annonceur

Ou