Appartement 3 chambres Veli vrh, Pula, Veli Vrh - Industrijska zona, Pula

€ 154 000
3
55 m²
1
1
Oui

Remarque

Annonce mise à jour le 08/04/2026
Description

This description has been translated automatically and may not be accurate

référence: 6088

PULA - NEW BUILDING | Apartment on the 1st floor, 55 m² | terrace | garage parking space, A16

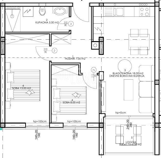
We offer an apartment in a modern new building in Pula, located on the 1st floor of a quality residential building with an elevator. The total area of ​​the apartment is 55 m². The project is currently under construction, and the planned completion of the works is October 2027.

The apartment has a functional and practical layout and consists of:

entrance hall
two bedrooms
bathrooms
kitchen with dining room
living room
terraces with an exit from the living room

The building is equipped with an elevator, and the apartments will have underfloor heating in all rooms, top-quality carpentry and a high level of thermal and sound insulation, which ensures maximum living comfort.

The apartment is sold according to the "turnkey" system.

The price of a garage parking space is €18,500.
There is also the possibility of purchasing a storage room in the basement of the building (not a condition of purchase).

The planned completion of construction is 10/2027. year.

This property represents an excellent opportunity for a pleasant family life or a safe investment in a quality new building in an attractive location in Pula.

ID CODE: 6088

Zoran Stupar
Agent s licencom
Mob: +385 99 5705 551
Tel: +385 52 774 199
E-mail: zoran.stupar@mololongorealestate.com
www.mololongorealestate.com
Caractéristiques
Typologie
Appartement
Transaction
Vente
Étage
1 étage
Étages du bâtiment
4
Ascenseur
Oui
Superficie
55 m²
Chambres/pièces
3
Chambres
2
Bains/douches
1
Balcon
Non
Terrasse
Non
Box, places stationnement
1 dans garage/box, 1 place(s) de parking
Chauffage
Individuel, avec air
Climatisation
Autonome, froid/chaud
Informations sur les prix
Prix
€ 154 000
Prix au m²
2 800 €/m²
Efficacité énergétique

Consommation d'énergie

A+

Options additionnelles

Contacter l'annonceur

Ou