Appartement 3 chambres neuf, Vodice

€ 716 000
3
145 m²
2
Non
Terrasse

Remarque

Annonce mise à jour le 24/03/2026
Description

This description has been translated automatically and may not be accurate

référence: S2348

Vodice-Srima - Penthouse en première ligne de mer

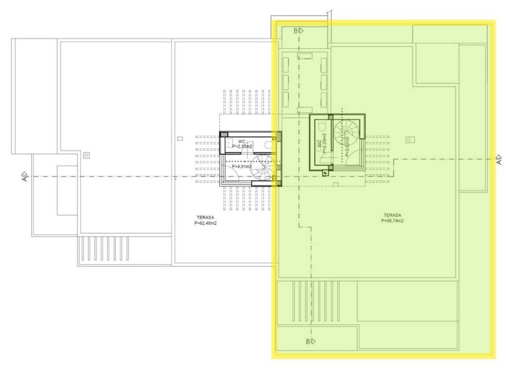
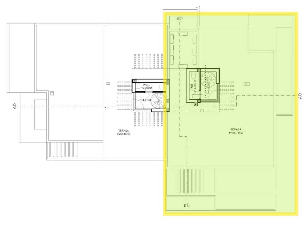
VODICE-SRIMA - penthouse entièrement meublé et équipé à vendre avec terrasse sur le toit, surface habitable de 94,12 m2 + terrasse de 143,12 m2 et parking de 12,50 m2, surface nette totale de 145,49 m2

L’appartement est situé au 2ème étage de l’immeuble et se compose de : hall d’entrée, salle de bain commune, chambre 1, chambre avec salle de bain privative et terrasse privée de 17,82 m2, vestibule, WC commun, chambre 3, cuisine avec salle à manger et salon ainsi qu’une terrasse de 30,56 m2, accès à la terrasse sur le toit où se trouve une magnifique terrasse de 94,74 m2 avec WC et installations pour une cuisine d’été. L’appartement dispose d’une place de parking aménagée devant l’immeuble.



Qualité et équipements :
L’appartement a été construit en mettant l’accent sur la qualité, la fonctionnalité et un design contemporain :

porte d’entrée anti-effraction et coupe-feu, portes intérieures de qualité au design moderne

menuiserie PVC avec double vitrage, volets en aluminium à commande électrique et moustiquaires

climatisation (chauffage et refroidissement) avec commande Wi-Fi

chauffage au sol électrique dans les salles de bain

système d’interphone moderne et installation antenne

installations électriques de qualité avec interrupteurs modernes et éclairage LED

revêtements de sol : céramique haut de gamme et stratifié (12 mm)

salles de bain équipées de sanitaires et équipements de marque renommée

murs intérieurs traités et peints en blanc

garde-corps en verre sur les terrasses pour une vue maximale et une élégance accrue

Avantages supplémentaires :

raccordement pour poêle à combustibles solides

système de désenfumage dans la cage d’escalier

raccordements individuels d’eau et d’électricité

façade avec isolation thermique (système ROFIX)

Ce bien immobilier représente une parfaite combinaison de luxe, confort et emplacement attractif avec une vue à couper le souffle.
Caractéristiques
Typologie
Appartement | Propriété de luxe
Transaction
Vente
Ascenseur
Non
Superficie
145 m²
Chambres/pièces
3
Chambres
3
Bains/douches
2
Balcon
Non
Terrasse
Oui
Chauffage
Individuel, avec radiateurs, alimentation électrique
Distance de la mer
30 m
Autres caractéristiques
  • Porte blindée
Informations sur les prix
Prix
€ 716 000
Prix au m²
4 938 €/m²
Efficacité énergétique

Consommation d'énergie

A

Plan
Découvrez chaque recoin de la propriété
+19
Options additionnelles

Contacter l'annonceur

Ou