Appartement 4 chambres Trsat, Rijeka, Trsat - Krimeja, Rijeka

€ 640 000
4
134 m²
2
2
Non
Balcon

Remarque

Annonce mise à jour le 29/04/2026
Description

This description has been translated automatically and may not be accurate

référence: 7544

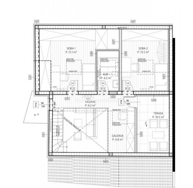
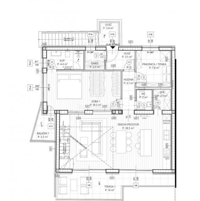
Spacious duplex apartment for sale in Trsat – new build

In one of the most sought-after locations in Rijeka, in Trsat, a modern duplex apartment with multiple terraces and a balcony is for sale. This property represents a rare opportunity in an area where the availability of similar properties is very limited.

The apartment is functionally arranged over two levels. The lower floor features a spacious open-concept living room with kitchen and dining area, access to a terrace, a bedroom with its own bathroom and balcony, a storage room, and a laundry room. The upper floor includes two additional bedrooms, a bathroom, a space suitable for a home office or study area, and a rooftop terrace that offers privacy and a perfect place to relax.

The apartment is equipped to a high standard, including underfloor heating via a heat pump, air conditioning in all rooms, triple-glazed aluminum joinery, lift-and-slide glass walls, quality flooring, and premium ceramics.

The property includes three parking spaces, and the combination of modern construction, quality equipment, and an excellent location makes this apartment ideal for comfortable family living or a long-term investment.

Provizija agencije za kupca iznosi 3% + PDV i plaća se u slučaju kupovine nekretnine kod zaključenja kupoprodajnog Ugovora.

ID CODE: 7544

Euro Immobilien d.o.o.
Mob: 385994440660
Tel: +385 51 220 024
E-mail: info@euro-immobilien.hr
www.euro-immobilien.hr
Caractéristiques
Typologie
Appartement
Transaction
Vente
Étage
2 étage
Ascenseur
Non
Superficie
134 m²
Chambres/pièces
4
Chambres
3
Bains/douches
2
Balcon
Oui
Terrasse
Non
Box, places stationnement
3 place(s) de parking
Climatisation
Autonome, froid/chaud
Informations sur les prix
Prix
€ 640 000
Prix au m²
4 776 €/m²
Efficacité énergétique

Consommation d'énergie

A+

Découvrez chaque recoin de la propriété
+7
Options additionnelles

Contacter l'annonceur

Ou