Trogir, Marina - Appartement de trois chambres avec balcon dans un nouveau bâtiment moderne
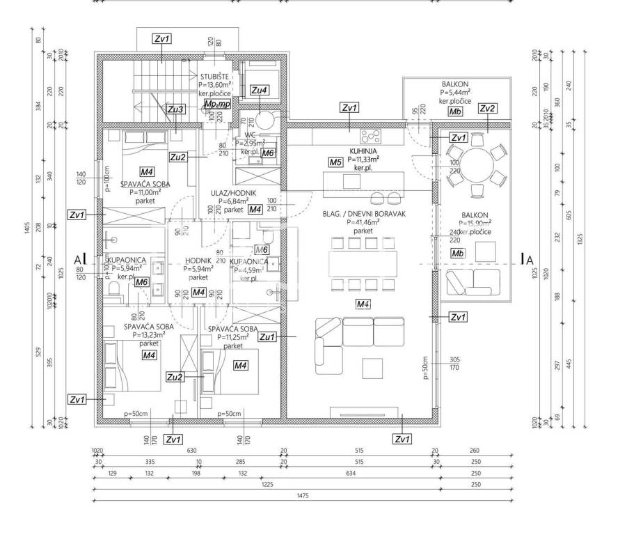
Situé au premier étage d'un petit immeuble résidentiel à Marina, cet appartement spacieux en nouvelle construction est destiné aux acheteurs à la recherche d'un agencement fonctionnel, d'une plus grande surface et d'un niveau d'intimité plus élevé par rapport aux projets résidentiels classiques. L'appartement est particulièrement adapté aux familles et aux acheteurs souhaitant un espace de vie confortable dans un petit immeuble, mais aussi aux investisseurs à la recherche d'une propriété avec un potentiel de location touristique haut de gamme. La surface nette totale de l'appartement est de 119,87 m². L'appartement se compose d'une entrée et d'un couloir, d'un salon spacieux avec salle à manger de 41,46 m², d'une cuisine, de trois chambres, de deux salles de bain et de toilettes supplémentaires. Le salon donne accès à deux balcons de 5,44 m² et 15,90 m², qui étendent davantage l'espace de vie et constituent un espace pour socialiser et passer du temps à l'extérieur. L'appartement offre une vue imprenable sur la mer, la marina et l'île de Čiovo. Il s'agit d'un petit projet résidentiel de seulement trois appartements répartis sur quatre étages (y compris le sous-sol et deux étages hors sol), et l'immeuble est équipé d'un ascenseur. Le projet est conçu pour offrir un niveau d'intimité plus élevé et un logement plus paisible par rapport aux grands immeubles résidentiels. L'appartement comprend une place de parking en garage, ce qui augmente encore la praticité de l'utilisation quotidienne. Le projet est situé dans un quartier calme de Marina, dans un environnement qui offre un bon équilibre entre intimité et accessibilité aux commodités, et la mer et les plages aménagées ne sont qu'à quelques minutes à pied. Les magasins, restaurants, cafés et la marina sont à proximité, tandis que la connectivité routière permet un accès rapide à Trogir et Split. L'emplacement est idéal pour une résidence à l'année, mais aussi comme investissement pour la location touristique, compte tenu de l'attractivité de la destination et de la proximité de la mer. La construction a commencé et l'achèvement du projet est prévu pour décembre 2026. Le paiement est possible par tranches de construction. Pour plus d'informations et pour organiser une visite, n'hésitez pas à nous contacter.