Appartement 4 chambres neuf, premier étage, Čakovec

€ 190 000
4
79 m²
2
1
Non

Remarque

Annonce mise à jour le 23/04/2026
Description

référence: 108201-226

IVANOVEC - TRI STAMBENE JEDINICE NA PRODAJU - U IZGRADNJI

Na prodaju 4-SOBNI stanovi identičnih tlocrta, svaki ukupne neto površine 79,17 m2 (s koeficijentom).
2 Parkirna mjesta ispred zgrade pripadaju stanu, a nisu uključena u kvadraturu stana te se ne naplaćuju dodatno.

Stanovi su četverosobni – sastoje se od tri spavaće sobe i dnevnog boravka otvorenog tipa (open space).

Raspored prostorija:

- Kuhinja + blagovaonica + dnevni boravak: 25,72 m2
- Hodnik: 2,16 m2
- Kupaonica: 4,08 m2
- Soba: 9,90 m2
- Soba: 9,90 m2
- Soba: 12,35 m2
- Hodnik: 4,44 m2
- Kupaonica: 5,20 m2
- Lođa: 7,22 m2 (obračunski 5,42 m2)

Karakteristike:

- Podno grijanje na plin
- Mogućnost odabira podnih obloga (pločice ili parket)
- Toplinska izolacija (stiropor 15 cm)
- PVC stolarija s troslojnim staklom
- Parkirno mjesto ispred zgrade

Lokacija:

Odlična i mirna lokacija s brzom povezanošću prema Čakovcu i autocesti.
Osnovna škola i vrtić nalaze se na udaljenosti od svega 750 metara. Do ulaska u Čakovec ima 1.8km
Idealno za miran obiteljski život, uz blizinu svih važnih sadržaja.

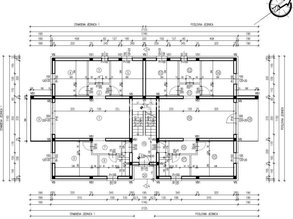
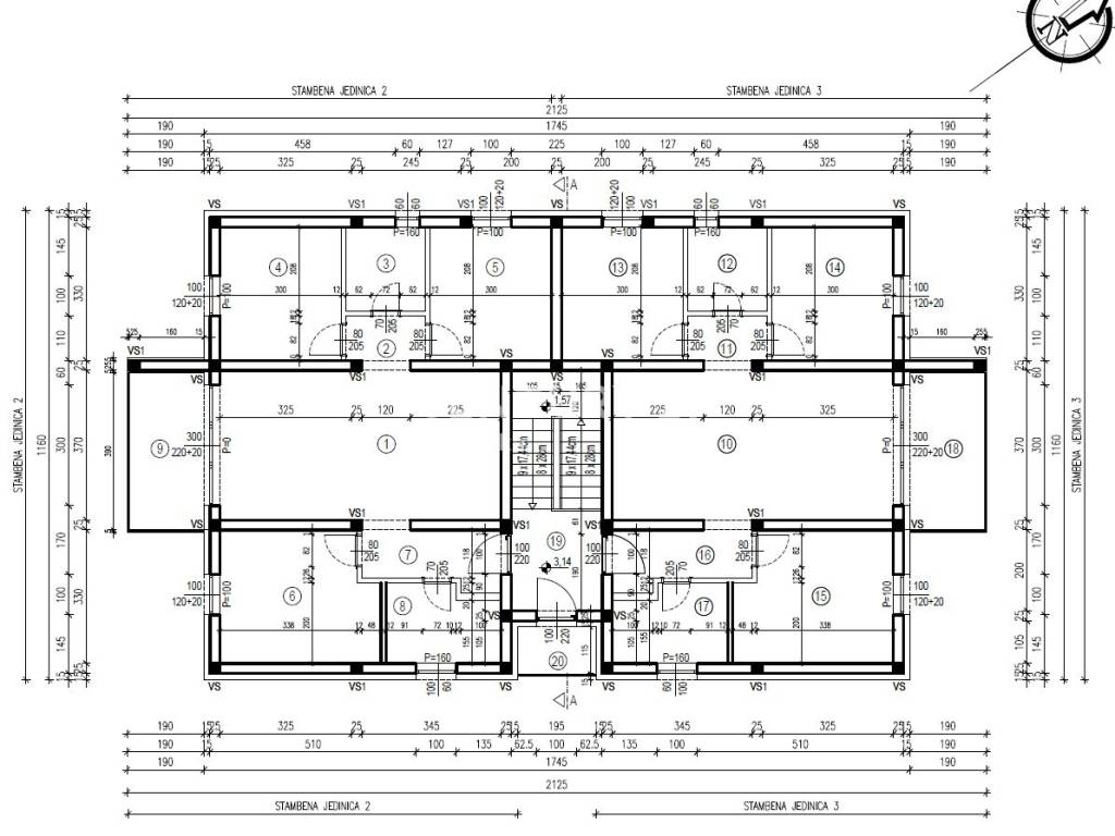
PLAN:

- Početak gradnje: ljeto 2026.
- Završetak i uporabna dozvola: jesen 2027.

Tlocrte, kvadrature i situaciju zgrade možete pronaći pod fotografijama.

Dostupan je i poslovni prostor istih kvadratura, kao četvrta jedinica.

Odmaknuto od gradske vreve, a opet tako blizu svega što vam treba.

Ova nekretnin prodaje se isklučivo preko Century21 agncije, a na raspolaganju za sva pitanja vam stoji:

Saša Martišek

licencirani agent

T: 097 75 47 775

E: sasa.martisek@c21.hr
Si vous voulez en savoir plus, vous pouvez parler à Saša Martišek.
Caractéristiques
Typologie
Appartement | Classe propriété moyenne gamme
Transaction
Vente
Étage
1 étage
Étages du bâtiment
1
Ascenseur
Non
Superficie
79 m²
Chambres/pièces
4
Chambres
4
Bains/douches
2
Balcon
Non
Terrasse
Non
Informations sur les prix
Prix
€ 190 000
Prix au m²
2 405 €/m²
Efficacité énergétique
  • Année de construction

    2027
  • État

    Nouveau / En construction
  • Certification énergétique

    En attente de certification
Découvrez chaque recoin de la propriété
+9
Options additionnelles

Contacter l'annonceur

Ou