Appartement 2 chambres neuf, deuxième étage, Voštarnica - Poluotok, Zadar

€ 295 000
2
95 m²
1
2
Non
Balcon

Remarque

Annonce mise à jour le 21/03/2026
Description

référence: iro-328

Manja stambena zgrada s 9 stambenih jedinica, Zadar (Bili brig - iznad zaobilaznice).
Sastoji se od podruma, prizemlja i dva kata. Na svakoj etaži nalaze se tri stambene jedinice. Stanovi u prizemlju imaju vrt pov. cca 40 m2, a stanovi na zadnjoj tj. 2. etaži imaju krovne terase. Svakom stanu pripadaju dva parkirna mjesta na okućnici zgrade i ostava u podrumu iste.
Zgrada, tj. svi stanovi imaju prekrasan pogled na grad i more.
Oprema zgrade: gradnja je kombinacija ciglenog termo bloka i betonskog zida, stiropor fasada deb. 10 cm (očekivani energetski razred A); vanjska PVC stolarija s troslojnim staklom, električnim roletama i komarnicima; ulazna protupožarna i protuprovalna vrata u stanove; podno grijanje u čitavom stanu; na podovima talijanska keramika vrhunske kvalitete; klime u svim sobama i dnevnom boravku; dimnjak; u sobama je moguće postavljanje parketa.
Na krovnim terasama će biti izvedena priprema za jacuzzi i toplu i hladnu vodu.
Lokacija je iznimno mirna, u blizini ulaza/izlaza u grad, s prekrasnim pogledom na čitav grad i zadarski arhipelag.
Planirani završetak gradnje je do početka proljeća 2026. god.

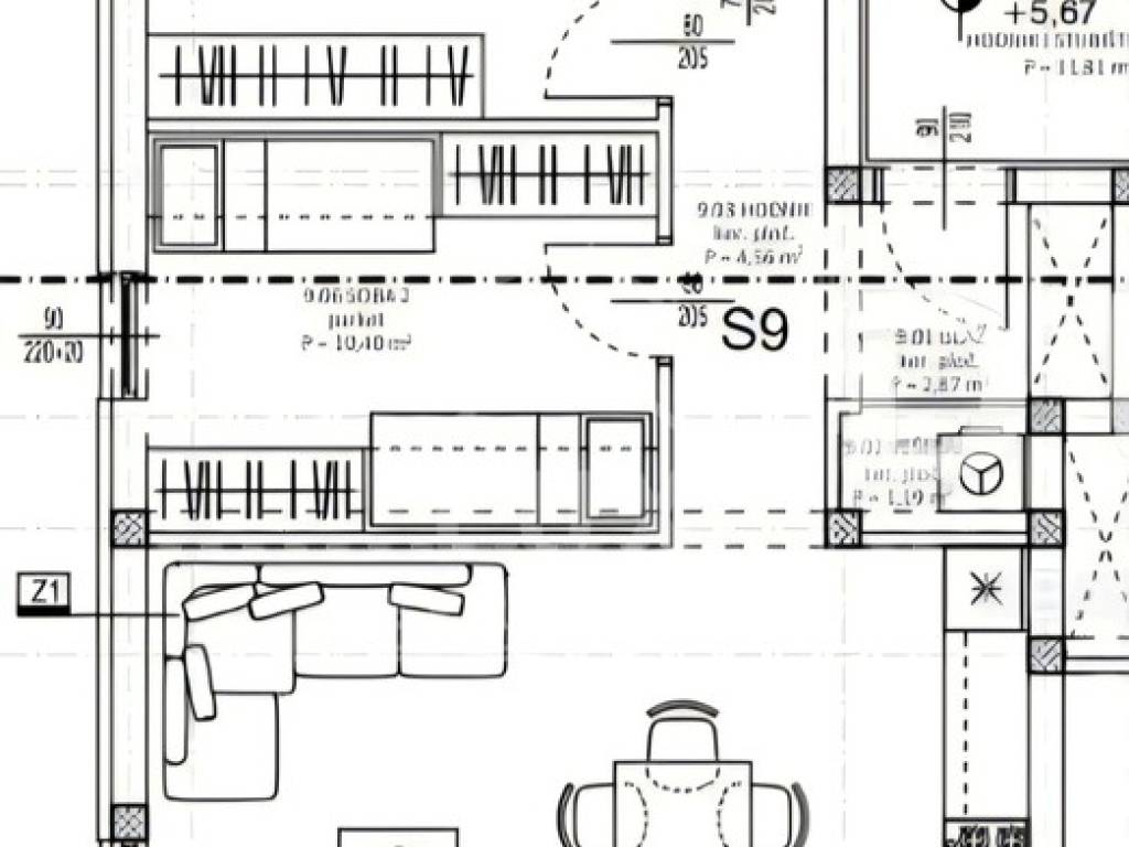
STAN S9 NA 2. KATU, DVOSOBAN, sadrži: hodnik (pov. 2.87 m2), dnevni boravak s blagovaonicom i kuhinjom (pov. 28.35 m2), dvije spavaće sobe (pov. 12.12 m2 i 10.40 m2), kupaonicu (pov. 4.29 m2), vešeraj (pov. 1.19 m2) i natkrivenu terasu (pov. 9.86 m2). Ukupno: 66.62 m2.
Stanu pripadaju dva vanjska parkirna mjesta, ostava u podrumu zgrade (pov. 3.26 m2) i krovna terasa (pov. 77.00 m2).
Orijentacija stana: JUG – JUGOZAPAD.
Ukupna površina stana sa svim pripatcima iznosi 95.40 m2.



Zadar, novogradnja, penthouse, krovna terasa, pogled na more
Caractéristiques
Typologie
Appartement | Classe propriété moyenne gamme
Transaction
Vente
Étage
2 étage
Étages du bâtiment
2
Ascenseur
Non
Superficie
95 m²
Chambres/pièces
2
Chambres
2
Bains/douches
1
Balcon
Oui
Terrasse
Non
Chauffage
Collectif, avec radiateurs
Climatisation
Autonome
Vue
Mer
Informations sur les prix
Prix
€ 295 000
Prix au m²
3 105 €/m²
Efficacité énergétique

Consommation d'énergie

A

Découvrez chaque recoin de la propriété
+28
Options additionnelles

Contacter l'annonceur

Ou