Appartement 3 chambres neuf, Arbanasi do Crno, Zadar

€ 399 798
3
105 m²
2
0

Remarque

Annonce mise à jour le 22/01/2026
Description

This description has been translated automatically and may not be accurate

référence: 5156

A new residential building project with one- and two-bedroom apartments of excellent quality is for sale in Zadar, in the Crvena kuća area.
The building will have 3 floors (GR+1ST FLOOR+2ND FLOOR), storage rooms on the ground floor and parking spaces in the building's yard. There are 8 residential units in total; there are 2 apartments with a garden on the ground floor, and 3 apartments are designed on each upper floor.
Each residential unit has one storage room and two parking spaces.
Construction is planned to begin at the end of 2025, and construction work is expected to be completed by the end of 2026.
 
BUILDING EQUIPMENT:
The highest quality materials will be used in the construction of this residential building, which will be installed according to the highest construction standards:
≅ Thermal facade of the building / 10 cm polystyrene
≅ PVC joinery with triple insulated glass (LOW-e filling)
≅ Built-in mosquito nets
≅ ALU roller shutters with electric lifts on the balcony walls
≅ Video intercom
≅ Storage rooms for tenants on the ground floor
The layout of the rooms is perfectly functional and maximally utilized. All rooms are filled with natural light due to large windows and glass walls.
 
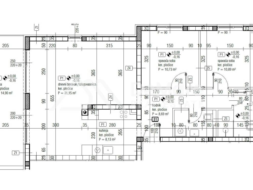
GROUND FLOOR S1: Two-bedroom apartment with garden:
This comfortable apartment is located on the ground floor of the building and consists of:
- Hallway (8.69 m2)
- Bedroom (10.89 m2),
- Bedroom (10.73 m2),
- Bathroom (5.19 m2),
- Toilet (3.41 m2),
- Kitchen (8.13 m2),
- Living room with dining room / open space (31.15 m2) with access to
- loggia (14.90 m2).
The apartment also includes a storage room (3.91 m2) on the ground floor, 2 outdoor parking spaces (2 x 13.75 m2) and a garden (64.31 m2) in the building's courtyard.
The interior area of ​​the apartment is 78.19 m2, and the total useful calculation value of the area of ​​the apartment with its accessories is 105.21 m2.
APARTMENT EQUIPMENT:
- Air conditioning (heating and cooling) - multi-split system, each room has its own unit
- Ceramic tiles and top quality sanitary ware
- In the bathroom - electric radiator
- Burglar / fire door
 
ADVANTAGE when purchasing this property:The buyer DOES NOT PAY real estate tax, because the investor is a reliable legal entity with many years of experience in construction, and is in the VAT system.
For a tour of the location, presentation of the project and selected properties,
as well as for all other information, please feel free to contact us!!
De Mare d.o.o.
Tel:   +385 23 300 400
Mail:  info@demare.hr
 
 
LOCATION:
Zadar is a European city tailored to human needs with the most beautiful sunsets and a city where the sea plays the organ, and attracts many tourists throughout the year. In summer because of the beautiful beaches it is surrounded by, and in other seasons because of its rich cultural heritage, gastronomy and numerous natural beauties it possesses. The city of Zadar is located in the very center of the Adriatic coast, is characterized by a mild Mediterranean climate, and is surrounded by 4 National Parks (Plitvice Lakes, Paklenica, Krka Waterfalls and the Kornati archipelago).
Zadar Airport is only 8 km away and is well connected to many European cities and destinations.
Zadar Ferry Port, which is 2.5 km from the property, has lines with most islands, and during the summer season is a stop for numerous tourist cruisers.
Si vous voulez en savoir plus, vous pouvez parler à Ivo Strenja.
Caractéristiques
Typologie
Appartement
Transaction
Vente
Étage
Rez-de-chaussée
Étages du bâtiment
2
Superficie
105 m²
Chambres/pièces
3
Chambres
2
Bains/douches
2
Box, places stationnement
2 place(s) de parking
Climatisation
Autonome, froid/chaud
Distance de la mer
2 m
Autres caractéristiques
  • Cadres extérieurs vitrage / PVC
  • Porte blindée
Détail de la surface

Habitation

Étage
Rez-de-chaussée
Superficie
105,2 m²
Coefficient
100%
Type de superficie
Habitable
Sup. commercial
105,2 m²
Informations sur les prix
Prix
€ 399 798
Prix au m²
3 808 €/m²
Détails des coûts
Charges de copropriété
Aucun frais de copropriété
Efficacité énergétique
  • Année de construction

    2026
  • État

    Nouveau / En construction
  • Climatisation

    Autonome, froid/chaud
  • Certification énergétique

    Non classifiable
Découvrez chaque recoin de la propriété
+17
Options additionnelles

Contacter l'annonceur

Ou