Terrain constructible en Vente

€ 250 000
1 473 m²

Remarque

Annonce mise à jour le 30/10/2025
Description

référence: 605

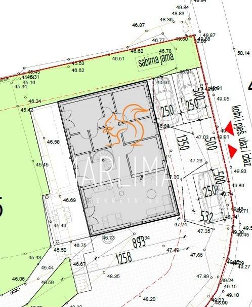
Prodaje se građevinsko zemljište veličine 1.473m2 koje se nalazi na otoku Pagu, točnije u Dabovim Stanima.
Zemljište ima ishodovanu građevinsku dozvolu.
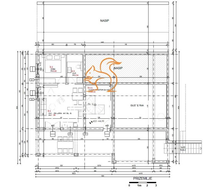
Prema projektu moguća izgradnja obiteljska kuća veličine 188m2  koja se prožima na dvije etaže; prizemlja i kata sa pripadajuća tri parkirna mjesta.
Prizemlje se sastoji od:
Ulaznog prostora 14.04m2Dnevnog boravka sa kuhinjom i blagovaonicom 24.06m2Spavaće sobe I 9.60m2Kupaonice 5.54m2GusterneKat se sastoji od:
Dnevnog boravka sa kuhinjom i blagovaonicom 34.15m2Spavaće sobe II veličine 10.59m2 koja ima svoju vlastitu kupaonicu 3.38m2 i garderobu 3.14m2Spavaće sobe III veličine 9.61m2Spavaće sobe IV veličine 9.61m2Spremišta veličine 2.10m2Hodnika 7.53m2Terase 37.40m2 
S parcele se pruža pogled na more!
Si vous voulez en savoir plus, vous pouvez parler à Ljiljana Špičić.
Caractéristiques
Transaction
Vente
Typologie
Terrain constructible
Superficie
1 473 m²
Informations sur les prix
Prix
€ 250 000
Prix au m²
170 €/m²
Plan
Novalja, Novalja
Novalja, Novalja
Novalja, Novalja
Novalja, Novalja
Novalja, Novalja
Découvrez chaque recoin de la propriété
+5
Options additionnelles

Contacter l'annonceur

Ou